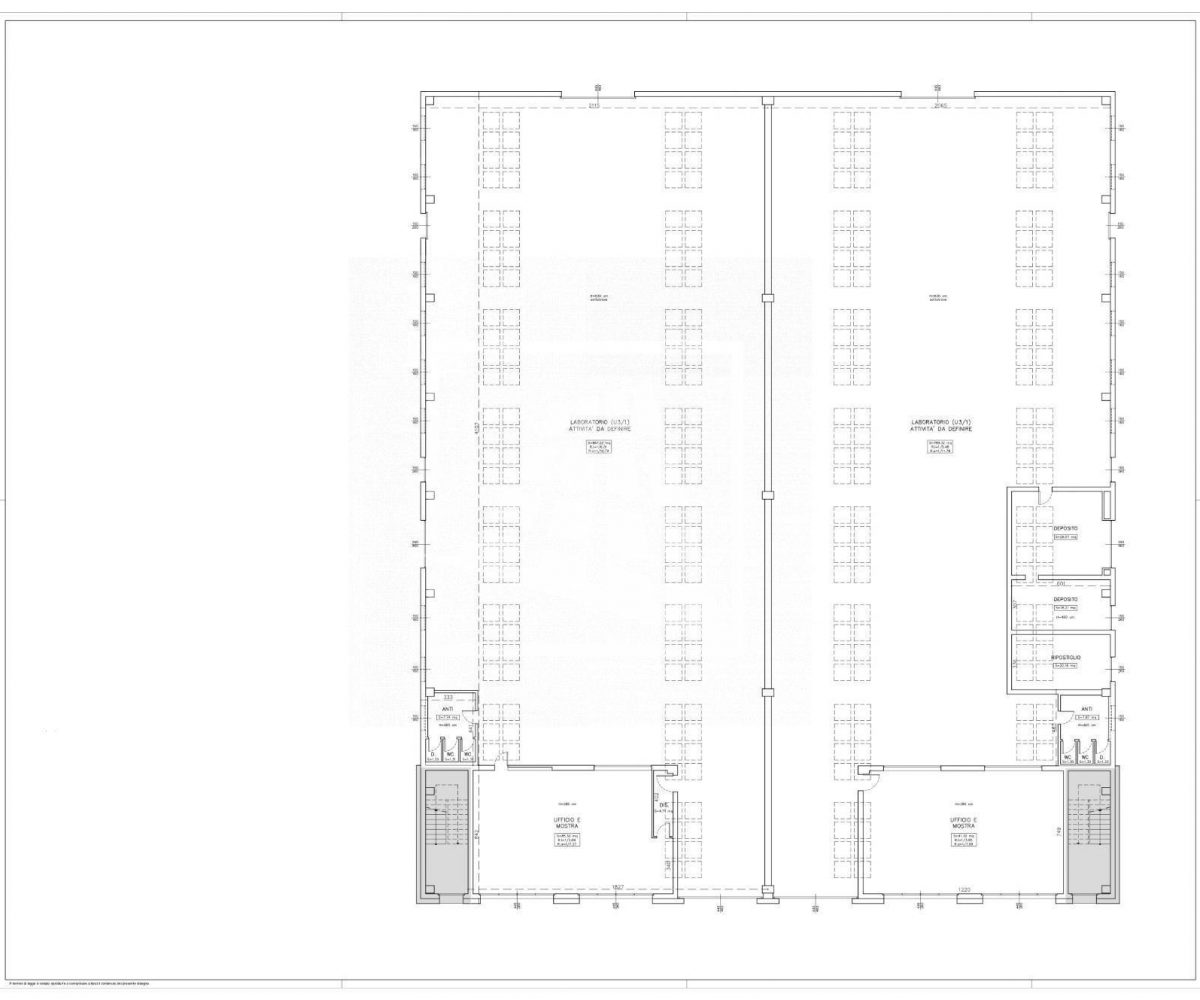
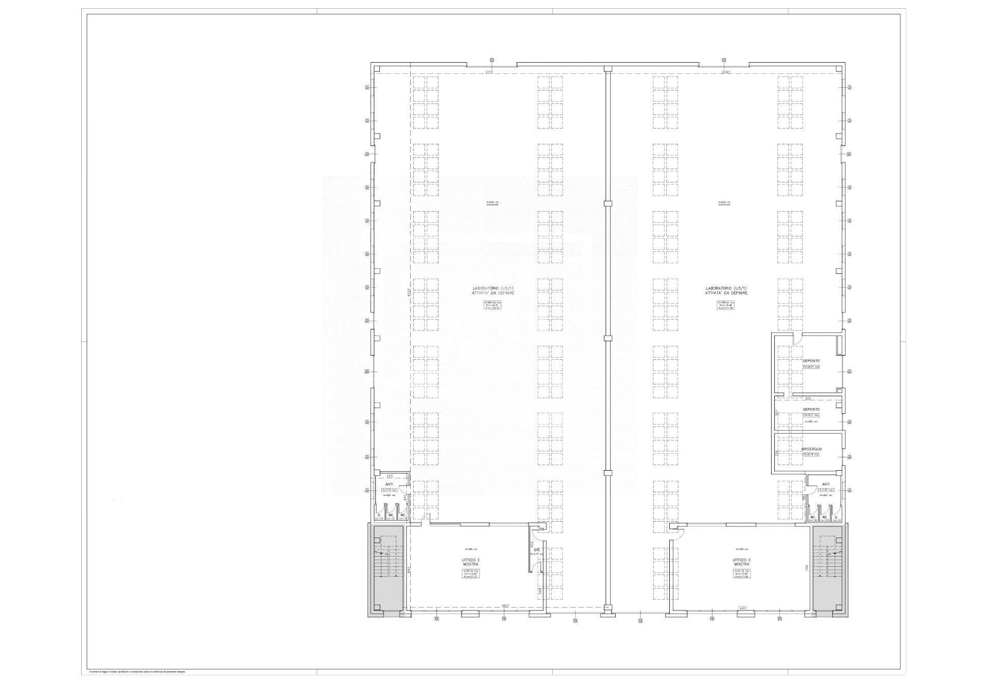
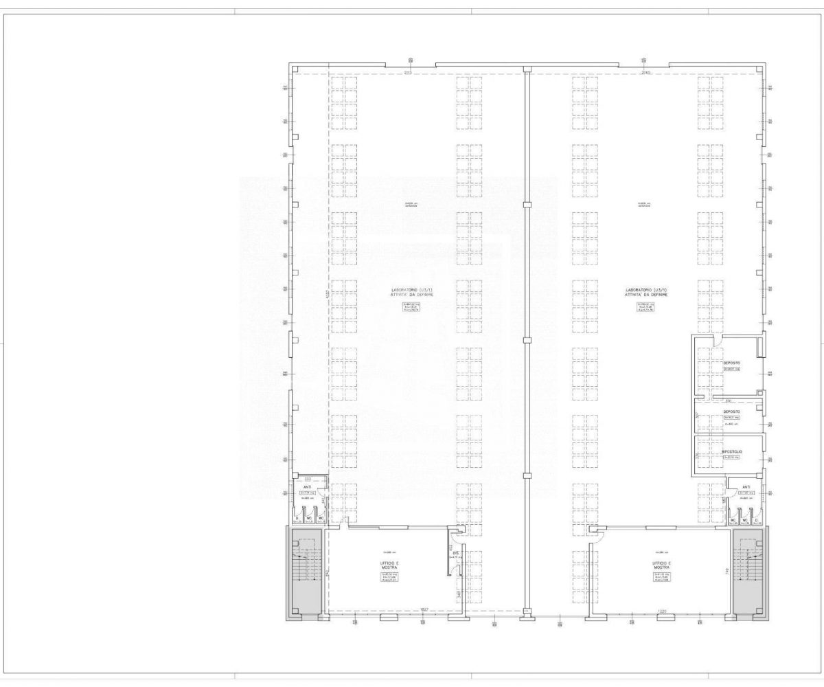
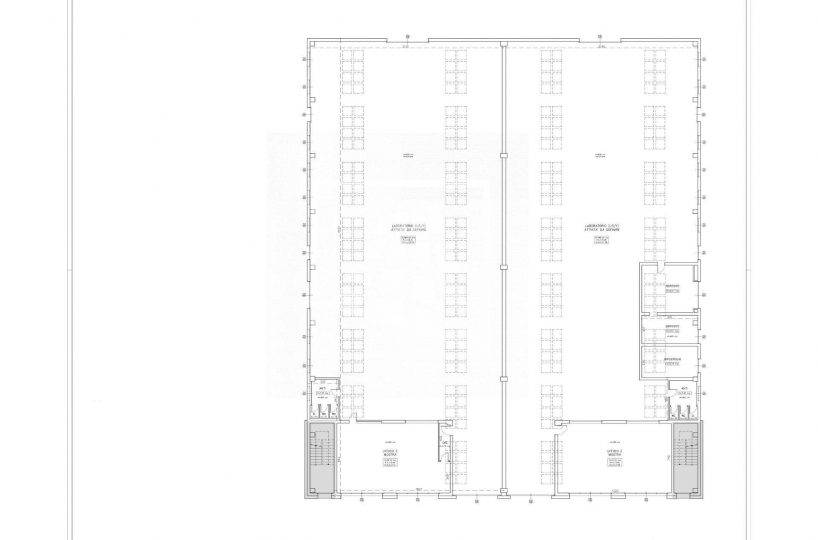
Reggio Nord – Capannone indipendente (Rif. VJ1056) in zona Mancasale con una superficie totale di mq 2.046.
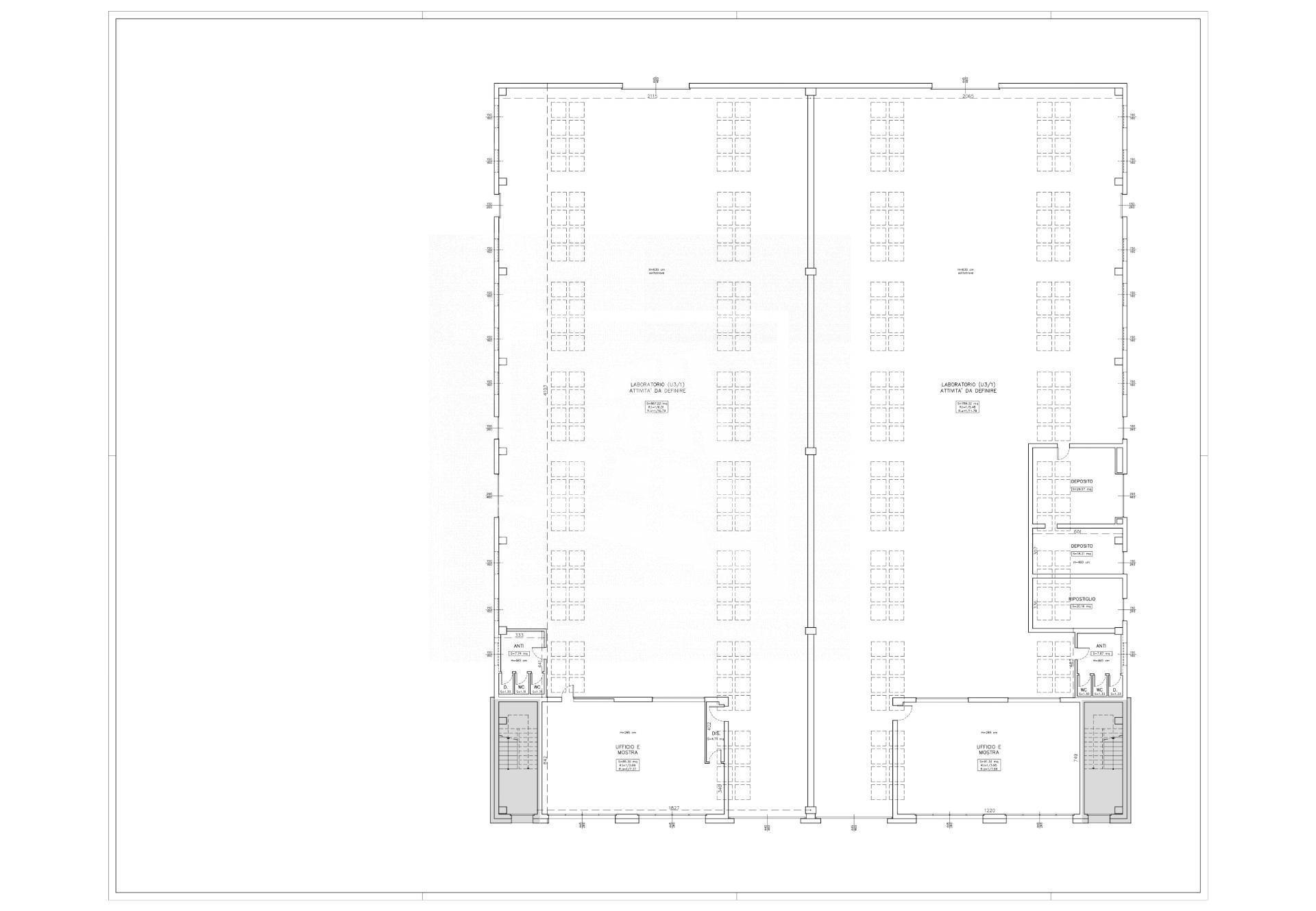
L’immobile è composto da due capannoni speculari collegabili così suddivisi:
– area produttiva di mq 854 e mq 918 per altezza m 6,50, con cinque portoni carrai, impianto elettrico con prese 220 e 380
– area magazzini di mq 91 con un portone carraio
– area amministrativa di mq 206 con due ingressi indipendenti, doppi servizi con doccia e due sala mostra open space munite di due vetrine ciascuna.
– al piano primo due appartamenti di mq 130 e mq 125 con ingresso indipendente e scala ad uso esclusivo, soggiorno, angolo cucina, disimpegno, due camere e un bagno.
L’immobile ha inoltre un’area cortiliva su tutti i lati per parcheggi e carico/scarico merci.
La sua posizione strategica in zona industriale, ben collegata alle principali vie di comunicazione, lo rende facilmente raggiungibile e visibile.
Inoltre, la zona è ben servita da servizi e infrastrutture, garantendo comodità e praticità per la gestione di diversi tipi di attività .
- Logistica m²2.046
- Classe EnergeticaNon specificato
- Riferimento immobileVJ1056
4 settimane fa
Richiedi maggiori informazioni
Agenzia
Altri annunci nella zona
-
Studio/ufficio In Vendita
Reggio nell'Emilia, Mancasale
€90.000
- m²127
- Classe EnergeticaD
- IPE255.76 kwh/㎡
7 giorni faAgenzia
-
Capannone In Affitto
Reggio nell'Emilia, Mancasale
€3.500
- Logistica m²817
- Classe EnergeticaNon specificato
7 giorni faAgenzia
-
Studio/ufficio In Affitto
Reggio nell'Emilia, Mancasale
€980
- m²127
- Classe EnergeticaD
- IPE255.76 kwh/㎡
7 giorni faAgenzia


