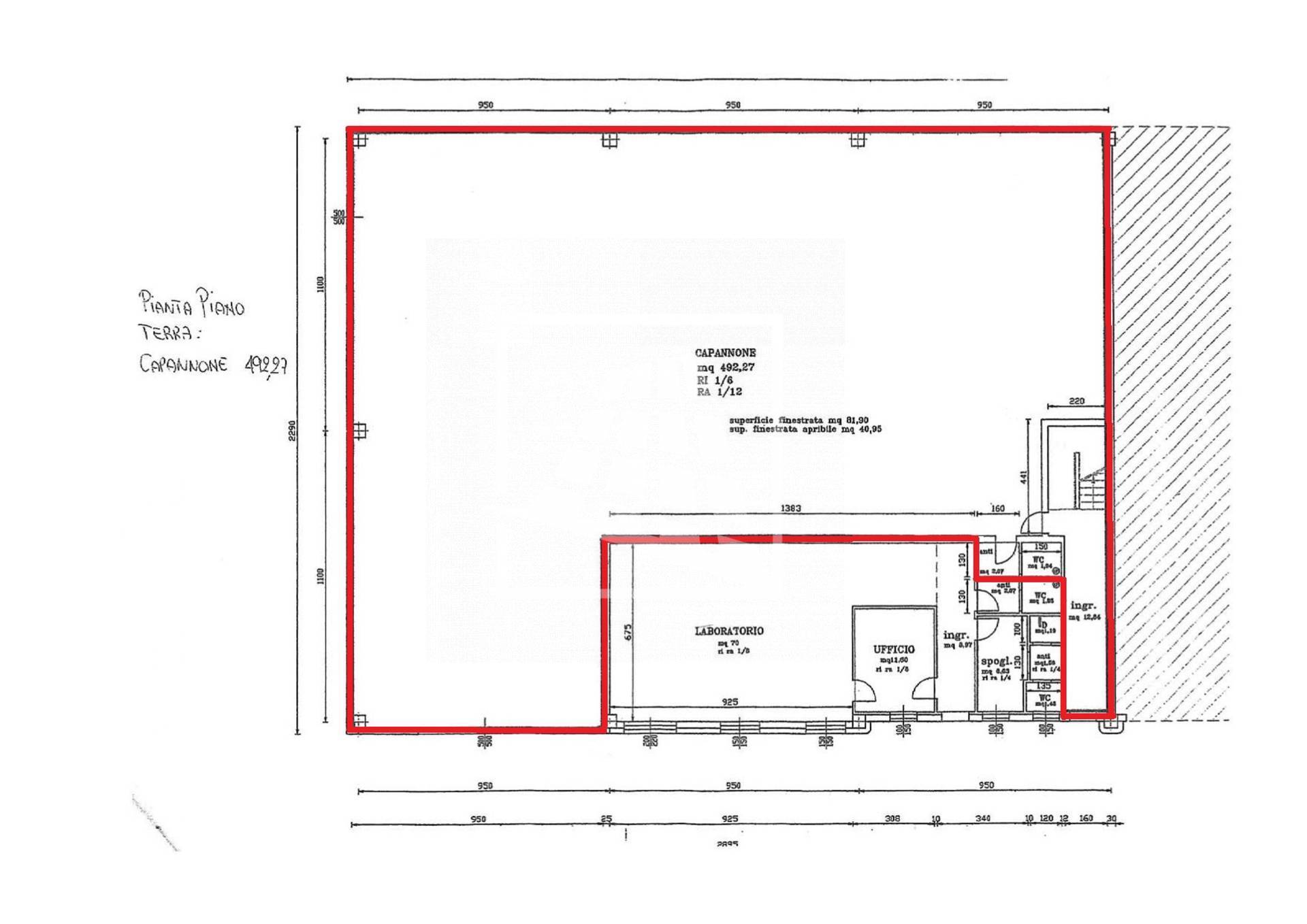
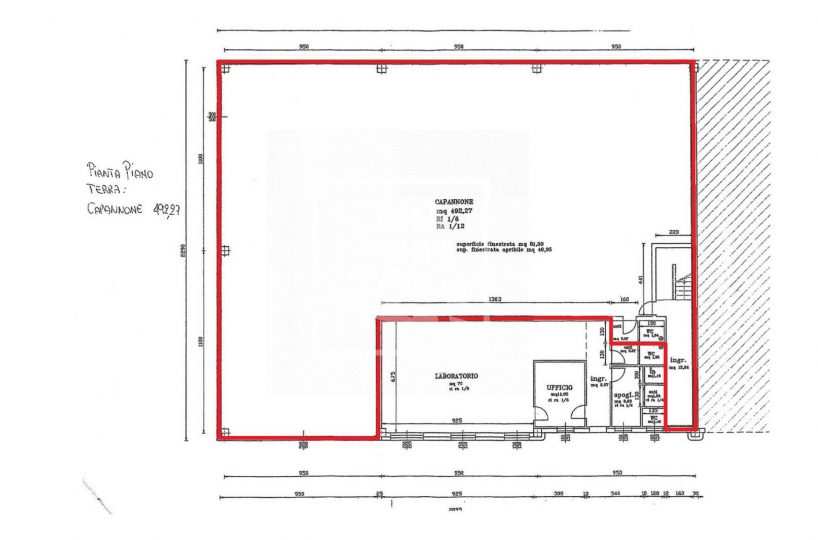
Montecchio – Capannone abbinato (Rif. VJ1055) in zona industriale con una superficie totale di mq 593 circa.
L’area produttiva è di 493 mq circa con due portoni, impianto di riscaldamento, corpi illuminanti e prese 220 e 380.
Al piano primo vi è un soppalco agibile tramite scala e un area amministrativa di mq 100 circa, con ingresso indipendente, spogliatoio con servizi e doccia, condizionata e cablata.
Lo stabile ha un’area cortiliva recintata ad uso parcheggio e movimentazione merci, con cancello carraio e pedonale.
Tutti gli impianti sono autonomi e a norma.
La sua posizione strategica, permette un facile collegamento alle principali vie di comunicazione, facilitando il trasporto delle merci.
Un’ottima soluzione per le aziende alla ricerca di uno spazio di lavoro funzionale e ben organizzato in una zona con una forte e dinamica presenza industriale.
- Logistica m²593
- Classe EnergeticaG
- IPE569.54 kwh/㎡
- Riferimento immobileVJ1055
2 settimane fa
Richiedi maggiori informazioni
Agenzia
Altri annunci nella zona
-
Locale Commerciale In Affitto
Montecchio Emilia
€1.200
- m²132
- Classe EnergeticaC
- IPE183.68 kwh/㎡
2 mesi faAgenzia
-
Studio/ufficio In Affitto
Montecchio Emilia
€3.000
- m²364
- Classe EnergeticaNon specificato
3 mesi faAgenzia
-
Villa Abbinata In Vendita
Montecchio Emilia
€430.000
- Camere da letto3
- Bagni2
- m²212
- Classe EnergeticaA4
4 mesi faAgenzia


