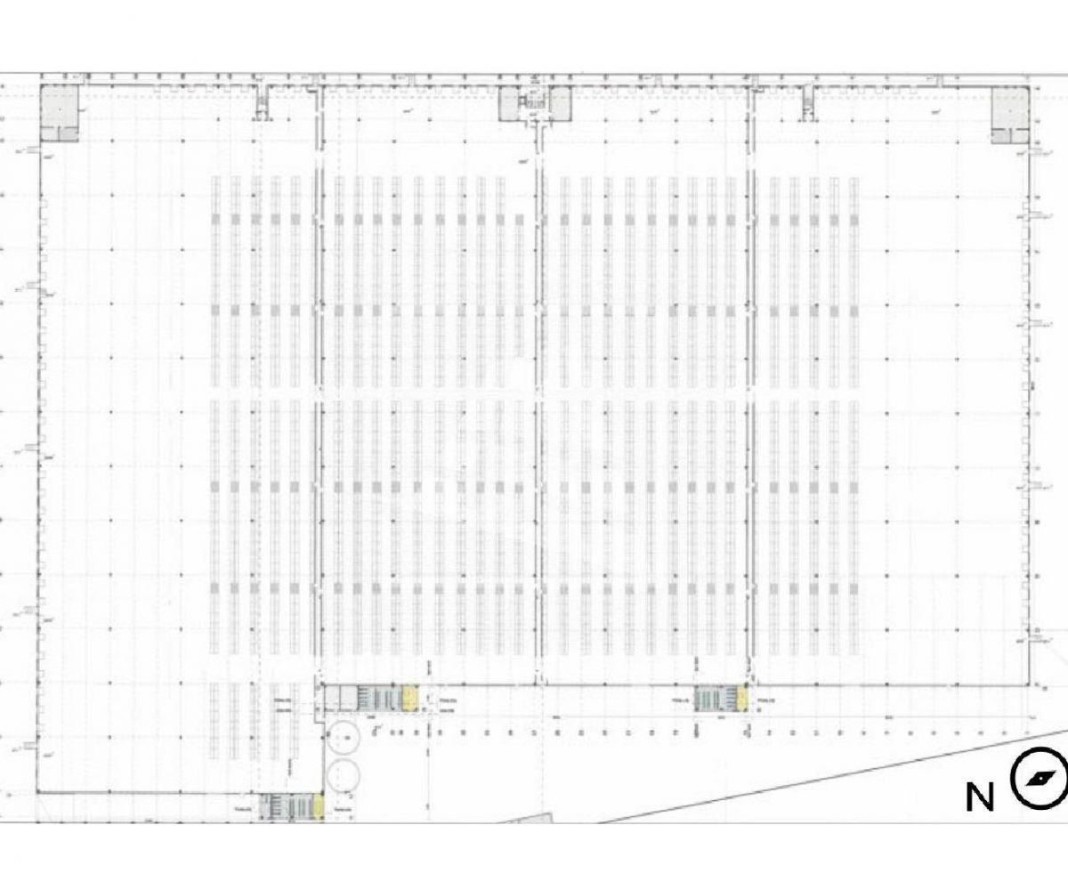
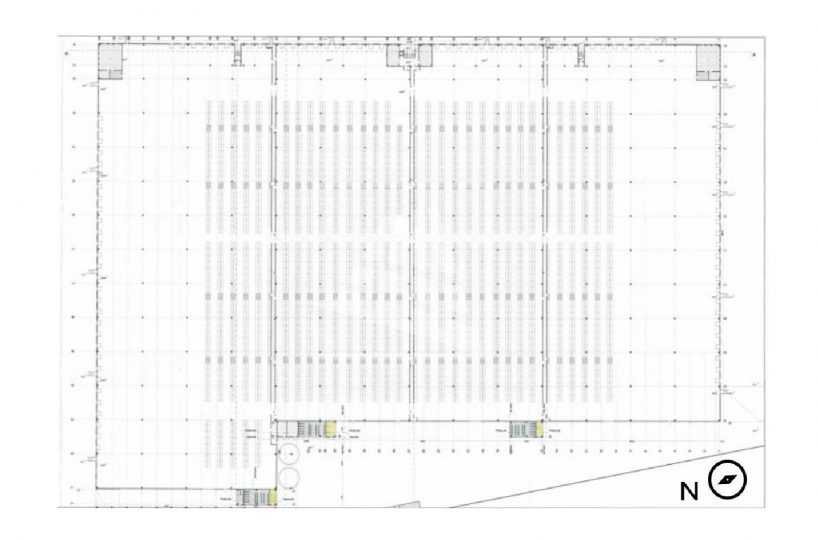
Vicinanze Parma – Capannone logistico (Rif. VJ1049) situato a soli 3 Km dal casello di Parma con una superficie totale di 52.740 metri quadrati in ottimo stato di conservazione.
L’altezza sotto trave è di 10,50 metri e dispone di ben 90 baie di carico, rendendolo ideale per attività che richiedono ampi spazi per un elevato volume di movimentazione di merci.
E’ presente un impianto antincendio Sprinkler e un impianto di condizionamento per lo stoccaggio merci a temperatura controllata.
Inoltre, è dotato di 2.288 metri quadrati di uffici, perfetti per ospitare lo staff amministrativo dell’azienda.
Grazie alla sua posizione strategica, il capannone è facilmente raggiungibile e ben collegato alle principali vie di comunicazione del Nord Italia.
Adatto per diverse attività logistiche, questo capannone rappresenta una soluzione ideale per chi cerca uno spazio ampio e ben organizzato per le proprie attività .
Le immagini sono solo indicative di un possibile utilizzo commerciale di immobili similari.
- Logistica m²52.740
- Classe EnergeticaNon specificato
- Riferimento immobileVJ1049
5 mesi fa
Richiedi maggiori informazioni
Agenzia
Altri annunci nella zona
-
Capannone In Affitto
Parma
€306.000
- Logistica m²56.494
- Classe EnergeticaNon specificato
3 mesi faAgenzia
-
Capannone In Affitto
Parma
€285.500
- Logistica m²52.741
- Classe EnergeticaNon specificato
5 mesi faAgenzia
-
Capannone In Affitto
Parma
€94.000
- Logistica m²17.368
- Classe EnergeticaNon specificato
5 mesi faAgenzia


