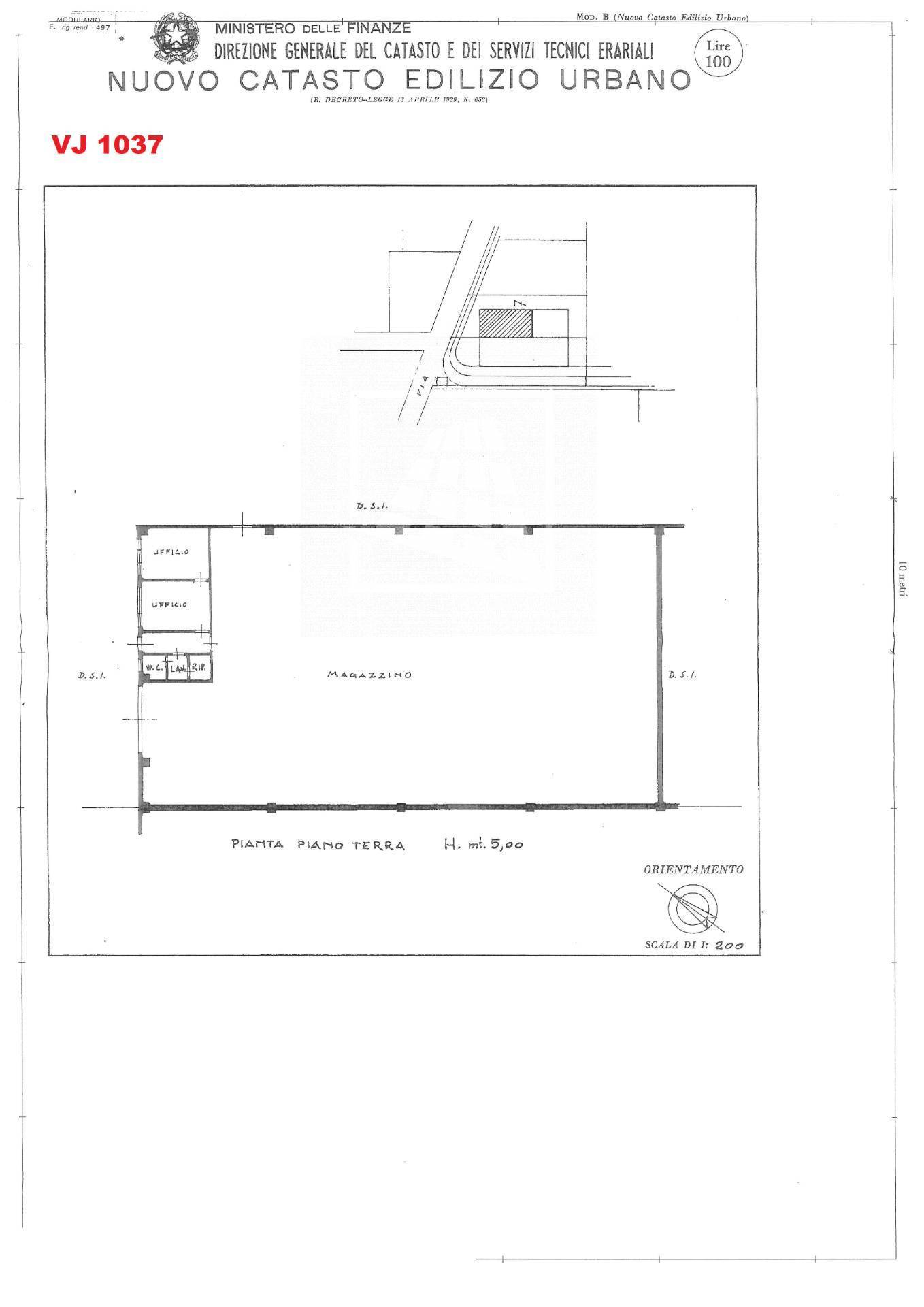
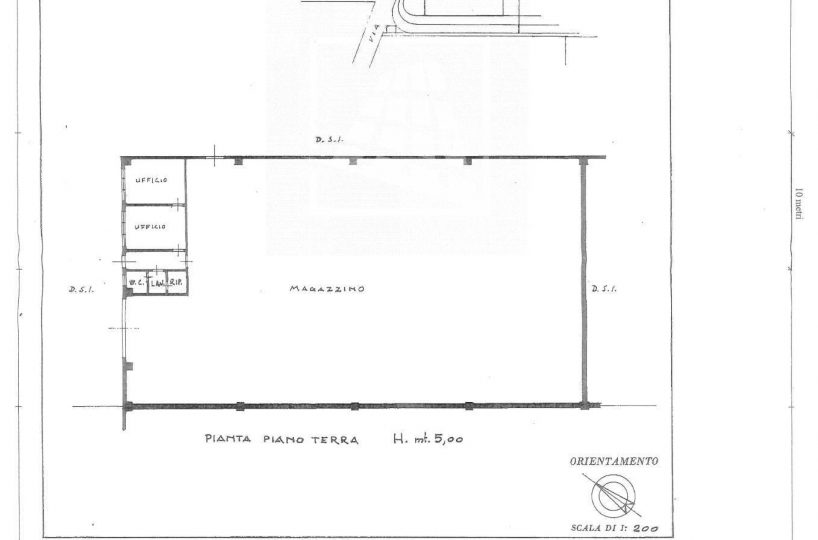
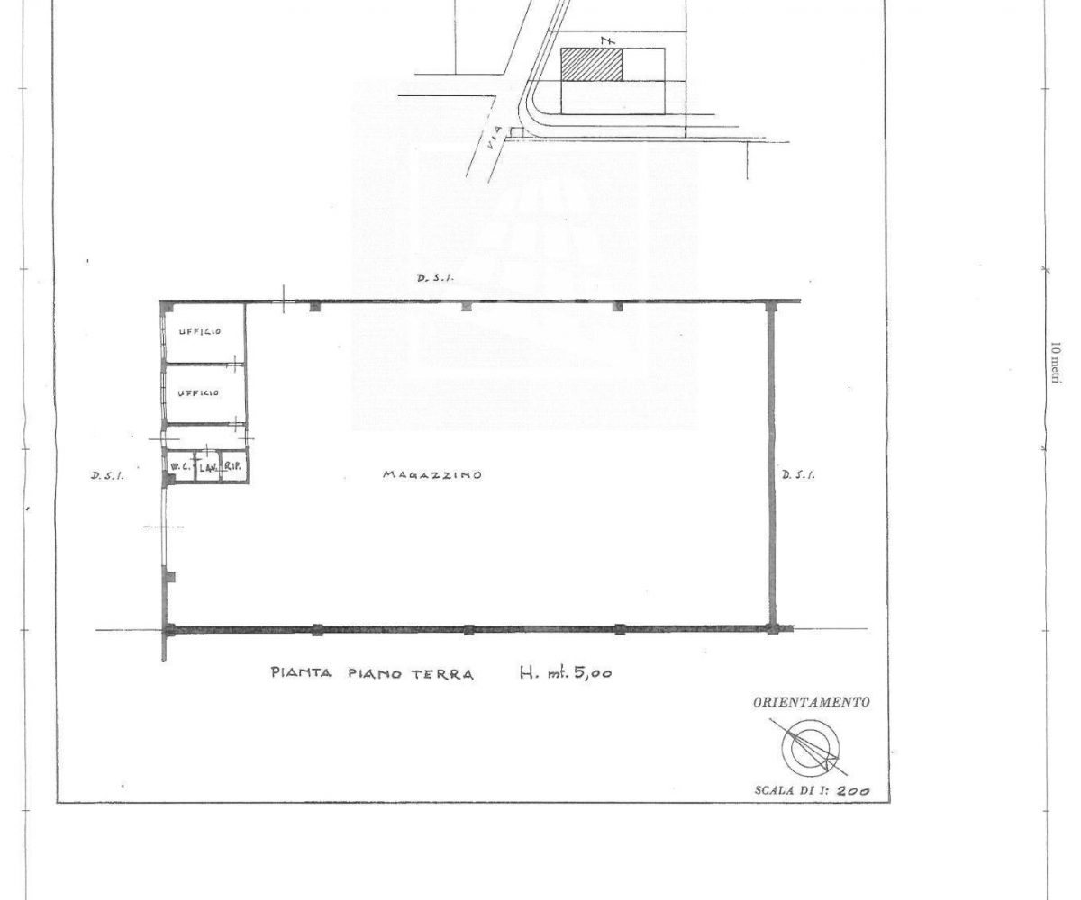
Reggio nord – Capannone con uffici (Rif. VJ1037) situato nella dinamica zona di Mancasale, con una superficie di totali mq 663 ripartiti in:
– Area magazzino di mq 567 per altezza m 5,00 con un portone carraio, corpi illuminanti e prese 220 e 380.
– Area uffici di mq 48 con ingresso indipendente, due vani uffici, ripostiglio e servizio con antibagno. Questo spazio è climatizzato con pompa di calore e split.
– Soppalco portante mq 48 (area sopra gli uffici) con ringhiera e agibile mediante scala in metallo.
Area cortiliva condominiale grande completamente recintata con due cancelli carrai e cancelletto pedonale.
Questo capannone è la soluzione ideale per chi cerca uno spazio ben conservato, e funzionale in una zona strategica della città .
- Logistica m²663
- Classe EnergeticaG
- IPE127.58 kwh/㎥
- Riferimento immobileVJ1037
2 mesi fa
Richiedi maggiori informazioni
Agenzia
Altri annunci nella zona
-
Capannone In Affitto
Reggio nell'Emilia, Mancasale
€6.800
- Logistica m²1.137
- Classe EnergeticaNon specificato
1 settimana faAgenzia
-
Studio/ufficio In Affitto
Reggio nell'Emilia, Mancasale
€980
- m²127
- Classe EnergeticaD
- IPE255.76 kwh/㎡
2 settimane faAgenzia
-
Studio/ufficio In Vendita
Reggio nell'Emilia, Mancasale
€90.000
- m²127
- Classe EnergeticaD
- IPE255.76 kwh/㎡
2 settimane faAgenzia


