Centro storico – Appartamento tre camere (Rif.RV8097)
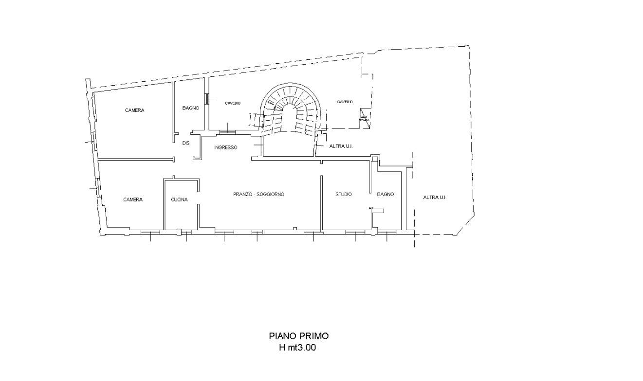
Appartamento di circa 115 mq, situato al primo piano di una palazzina di soli tre piani, nel pieno cuore del centro storico.
L’immobile è inserito in un contesto residenziale signorile con sole 5 unità , ben abitato e ottimamente servito.
L’abitazione, caratterizzata da spazi generosi, si compone come segue:
ingresso che si apre sulla zona giorno, dove troviamo la zona pranzo/soggiorno, una cucina abitabile e un pratico studio con bagno.
La zona notte è separata da un disimpegno, ospita due ampie camere da letto matrimoniali e un secondo bagno finestrato, con affaccio su un tranquillo cavedio interno.
L’immobile si presenta in ottimo stato e dispone di impianti autonomi con caldaia a metano, porta blindata, pavimenti in parquet e infissi in legno.
Al piano interrato la proprietà include una cantina di circa 10 mq.
Questa soluzione è ideale per chi cerca un’abitazione di ampia metratura e desidera vivere il charme del centro storico con il massimo comfort e la comodità di un contesto signorile e servito.
Classe energetica in elaborazione.
Per informazioni e appuntamenti Agenzia Via Cadoppi 8/B (RE)- Tel: 0522 512431 (anche messaggi WhatsApp) – Mail segreteria@piazzaffarisrl.it





