Cavriago – Podere agricolo (Rif. RV3892)
Podere agricolo di circa 45.600 mq recintabili formato da azienda vitivinicola ad indirizzo biologico, ampio rustico, dependance e terreni.
Posto nelle vicinanze del paese di Cavriago, è raggiungibile da due differenti ingressi dalle principali vie comunali.
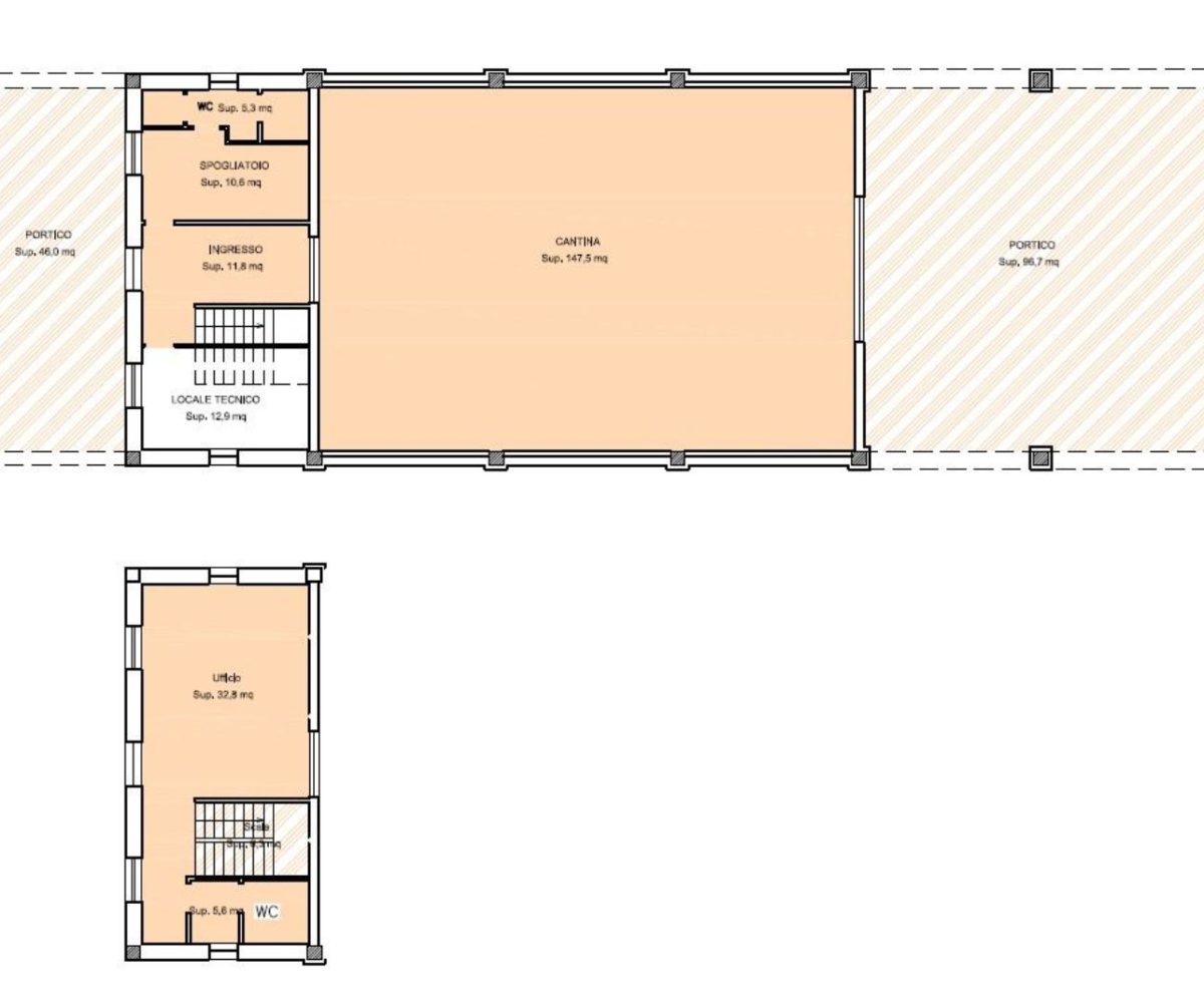
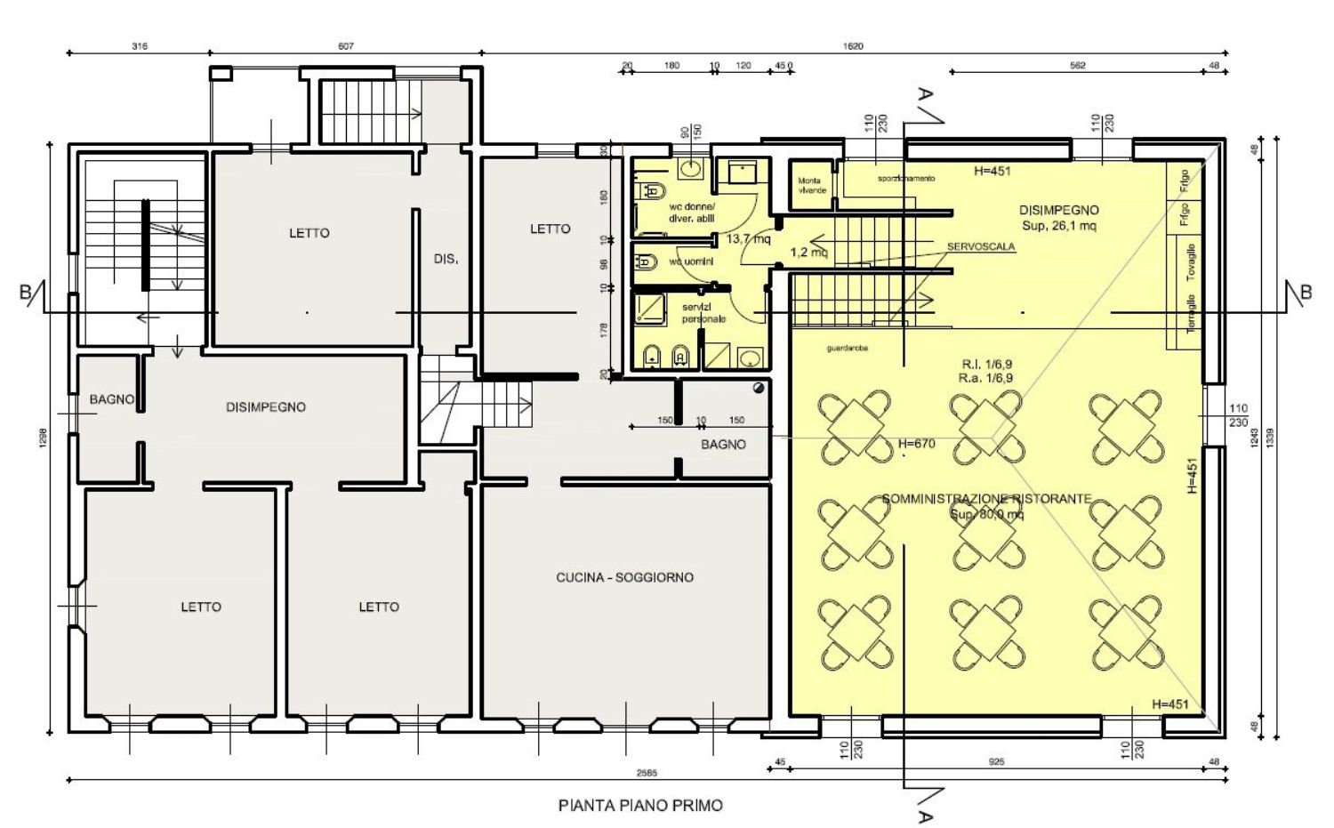
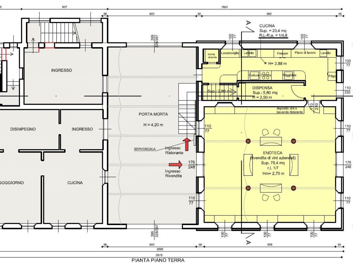
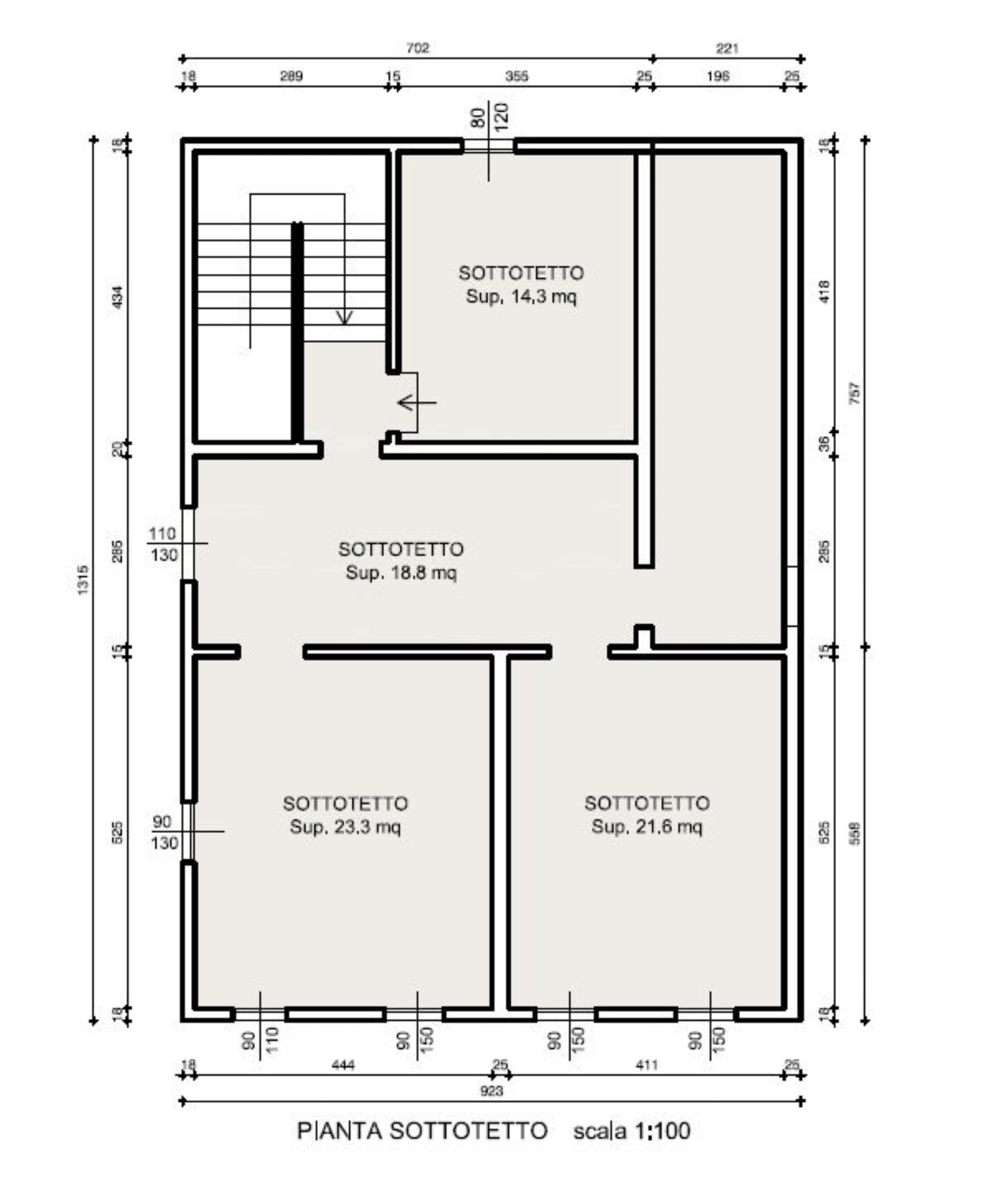
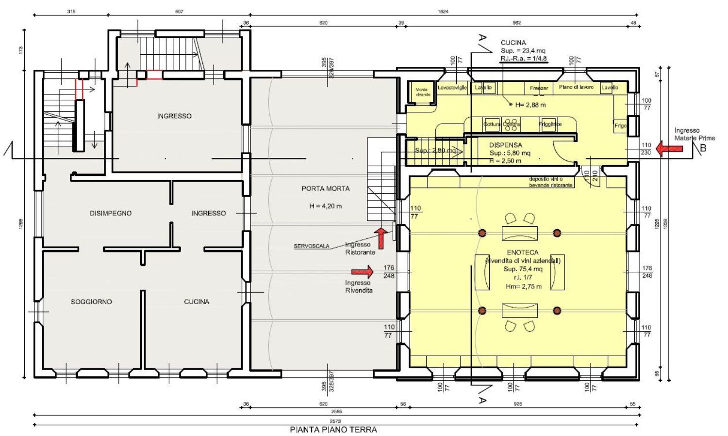
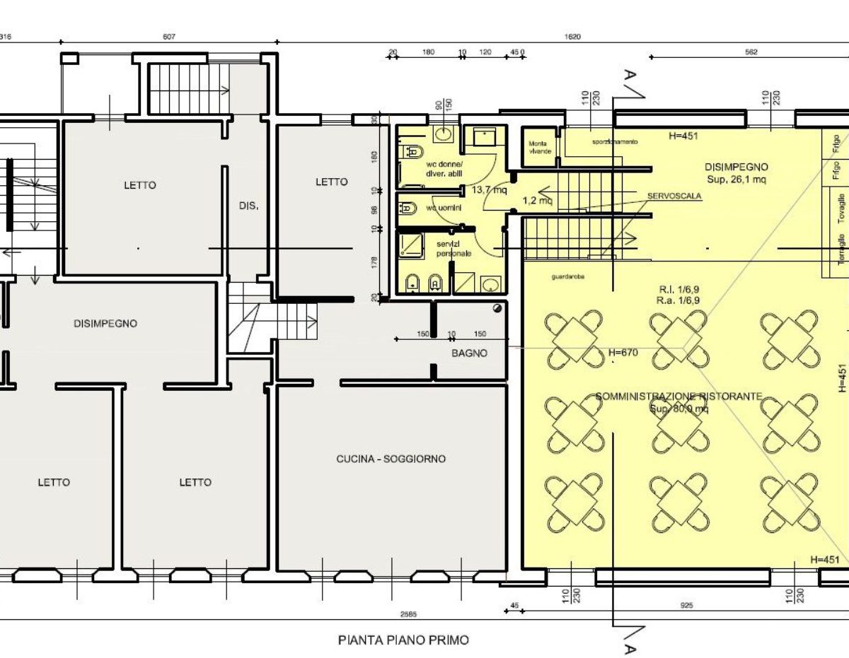
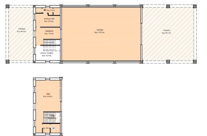
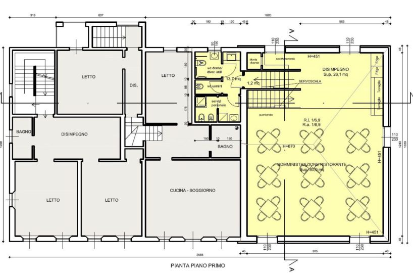
La proprietà comprende un grande rustico reggiano con tipica porta morta” in parte adibito a residenza, con 2 unità abitative, ed in parte rurale con stalla e fienile dove è possibile realizzare un agriturismo ed un Bed &






