Viano Loc. S. Giovanni di Querciola – Casa singola (Rif.RV3663)
Casa singola costruita negli anni ’70 e completamente ristrutturata nel 2000, con complessivi 180 mq e due appartamenti.
La casa si trova in posizione panoramica, immersa nel verde e circondata da ampio giardino privato di circa 1300 mq.
Internamente la casa è disposta su tre livelli così suddivisi:
– Piano terra con porticato e ingresso al primo appartamento di 70 mq, composto da soggiorno con camino, cucina abitabile, camera da letto e bagno.
In corpo staccato, adiacente alla casa, sono presenti un grande garage di 26 mq, una cantina ed un deposito legna.
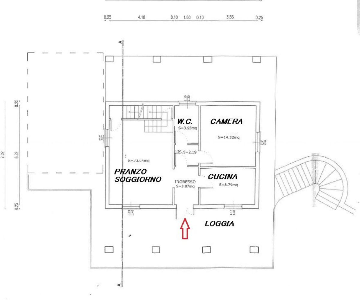
– Piano primo, accessibile da scala esterna, con ampio porticato di 25 mq dal quale si accede al secondo appartamento, composto da ingresso, cucina, soggiorno, bagno e camera matrimoniale. Da questo appartamento tramite scala interna si raggiunge la mansarda di ulteriori 63 mq con balcone panoramico, attualmente allo stato grezzo, in cui è possibile realizzare altre due camere da letto ed eventualmente un bagno.
Sul retro della casa si trova un ampio porticato, attualmente utilizzato come deposito attrezzi.
La casa è in ottime condizioni ed abitabile da subito, nelle vicinanze c’è la possibilità di acquistare un terreno agricolo.
Classe energetica F.





