Carpineti, Località Iatica – Casa singola con due unità e deposito attrezzi (Rif.RV0629)
In splendida posizione collinare, casa singola indipendente, composta da due unità abitative distinte e un ampio deposito attrezzi, ideale per chi cerca una soluzione multifunzionale in un contesto tranquillo e verdeggiante.
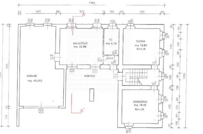
La Prima unità abitativa, edificata nel 2002, si presenta in ottime condizioni ed è sviluppata interamente al piano terra, con ambienti spaziosi e ben distribuiti, così composta:
Ampio soggiorno di 50 mq con affaccio su balcone di 17 mq rivolto a sud e accesso diretto al giardino privato di circa 900 mq, parzialmente recintato; Cucina abitabile a vista di 11 mq, due camere matrimoniali, una camera singola, due bagni e sottotetto di 124 mq, ben collegato internamente e con altezza media di 2,5 mt.
Sempre al piano: garage doppio di 45 mq e cantina/magazzino di 23 mq.
E’ presente inoltre un portico coperto di 39 mq, con possibilità di parcheggiare due auto.
L’abitazione è ideale anche per persone con mobilità ridotta, grazie alla totale assenza di barriere architettoniche e all’accesso diretto dal giardino.
Si vende parzialmente arredata di cucina, arredi bagno e altri elementi inclusi.
La Seconda unità abitativa è una porzione in sasso da ristrutturare con tetto rifatto nel 2002, dotata di ingresso indipendente, si sviluppa su tre livelli:
Al Piano terra la zona giorno con cucina, soggiorno e bagno.
Al Piano primo si sviluppa la zona notte con due camere da letto.
Al piano superiore invece un locale sottotetto parzialmente sfruttabile.
Perfetta come abitazione separata per familiari o come investimento da mettere a reddito.
Sono di pertinenza inoltre altri spazi accessori e appezzamenti di terreno; di fronte alla casa si trova un deposito attrezzi di 69 mq, con ampia area cortiliva di pertinenza.
Possibilità di acquisto separato di terreno agricolo nelle vicinanze.
L’immobile si trova a Iatica, una tranquilla località nel comune di Carpineti, situata: a 40 km da Sassuolo,45 km da Reggio Emilia
e 60 km da Modena.
Ottima soluzione per chi cerca tranquillità , ampi spazi, e la possibilità di ospitare più nuclei familiari o avviare un’attività rurale.
Classe energetica F.
Per maggiori informazioni o per prenotare una visita: contattare Silvia al 349 1060890





