Albinea – Locale commerciale (Rif. KV1078/A)
Con una superficie totale di mq 1.059 l’immobile si sviluppa su tre piani.
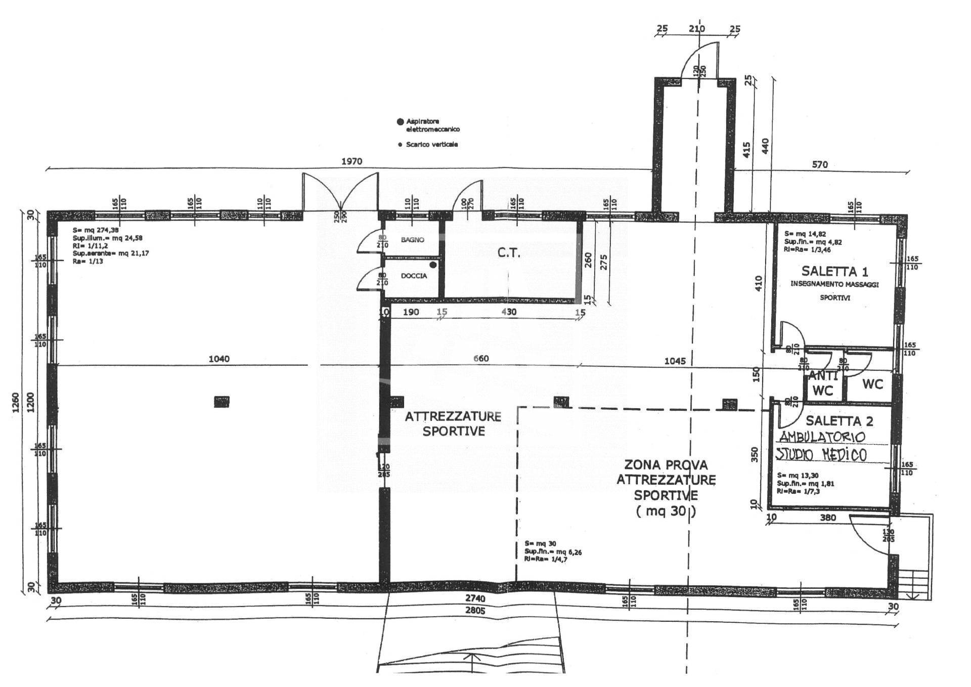
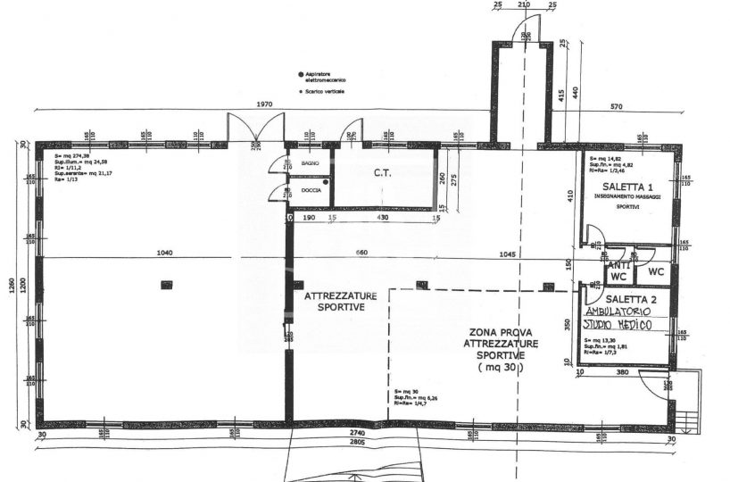
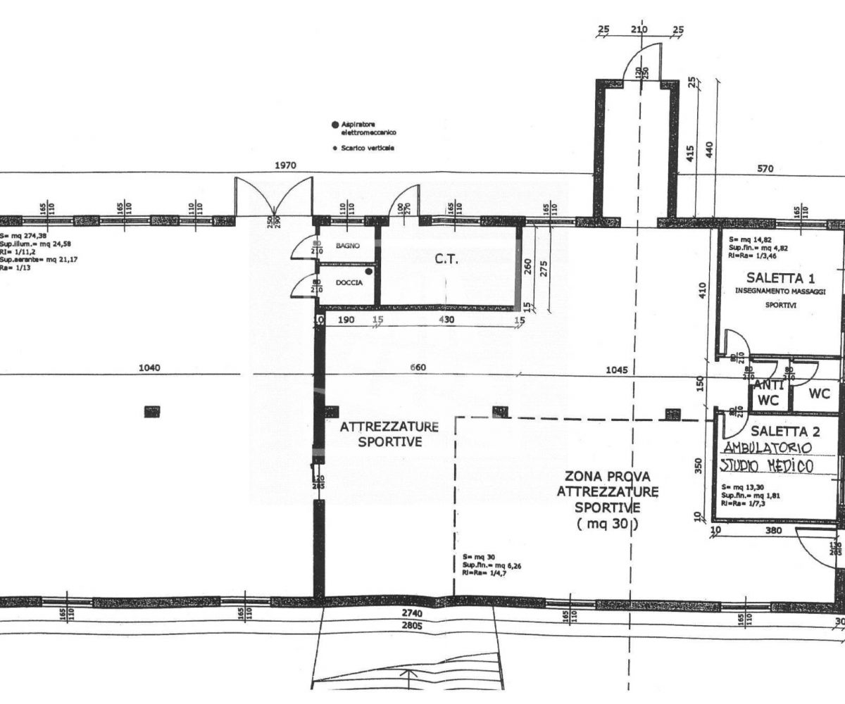
Al piano semi interrato vi è un magazzino di mq 274, con ingresso indipendente, tre vani in tutto di mq 58 e due servizi con doccia.
Al piano rialzato vi è il negozio, un grande open space con altezza m 3,35 e doppi servizi.
Quattro grandi vetrine che corrono su tutta la facciata anteriore garantiscono luminosità agli interni e ottima visibilità .
Al piano primo vi è un’ulteriore spazio espositivo open space con un altezza di m 3,00.
Un montacarichi è a servizio di tutti e tre i piani, altrimenti collegati da doppia scala.
Lo stabile si presenta in buono stato di conservazione, con interni moderni e ben curati. Le utenze sono autonome e gli impianti sono a norma.
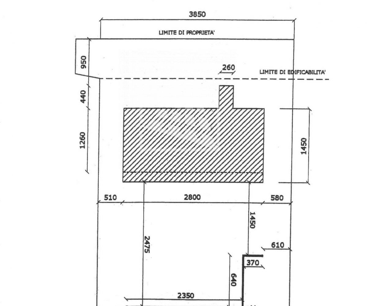
L’immobile ha un’importante area cortiliva di proprietà , asfaltata, recintata e con due cancelli carrai, con il vantaggio di un ampio parcheggio che agevola la sosta della clientela.
Il negozio si affaccia su un importante arteria e lo stabile è ben servito e immediatamente individuabile.
Questo locale commerciale rappresenta una grande opportunità per chi desidera un locale in una zona di grande passaggio, con ampi spazi e un elevato potenziale commerciale.
- m²1.059
- Classe EnergeticaNon specificato
- Riferimento immobileKV1078/A
2 mesi fa
Richiedi maggiori informazioni
Agenzia
Altri annunci nella zona
-
Esclusiva
Villetta A Schiera Centrale In Vendita
Albinea
€310.000
- Camere da letto3
- Bagni2
- m²212
- Classe EnergeticaF
3 giorni faAgenzia
-
Studio/ufficio In Vendita
Albinea
€235.000
- m²66
- Classe EnergeticaA4
- IPE46.90 kwh/㎡
4 settimane faAgenzia
-
Locale Commerciale In Vendita
Albinea
€290.000
- m²260
- Classe EnergeticaNon specificato
2 mesi faAgenzia


