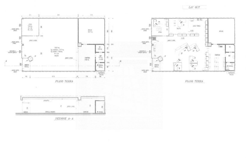
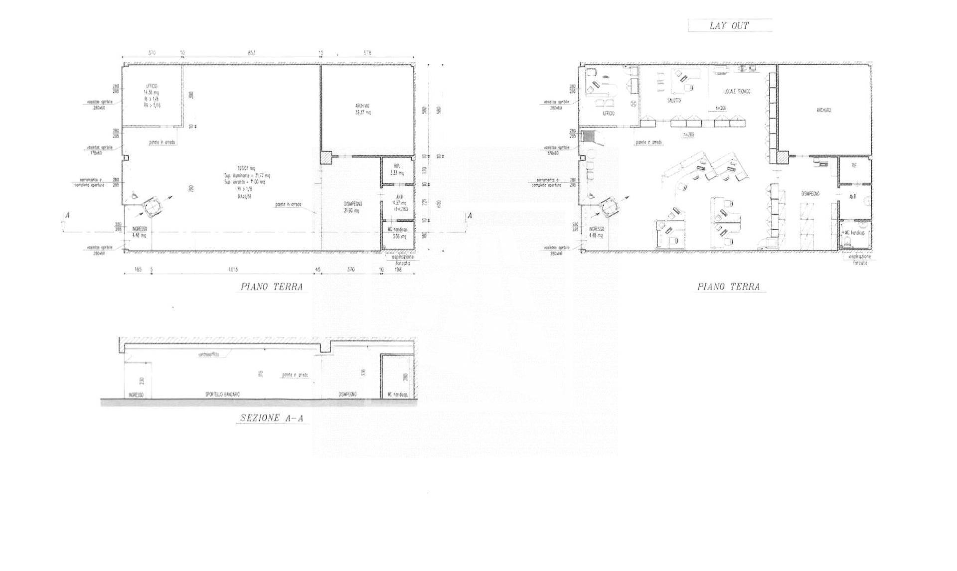
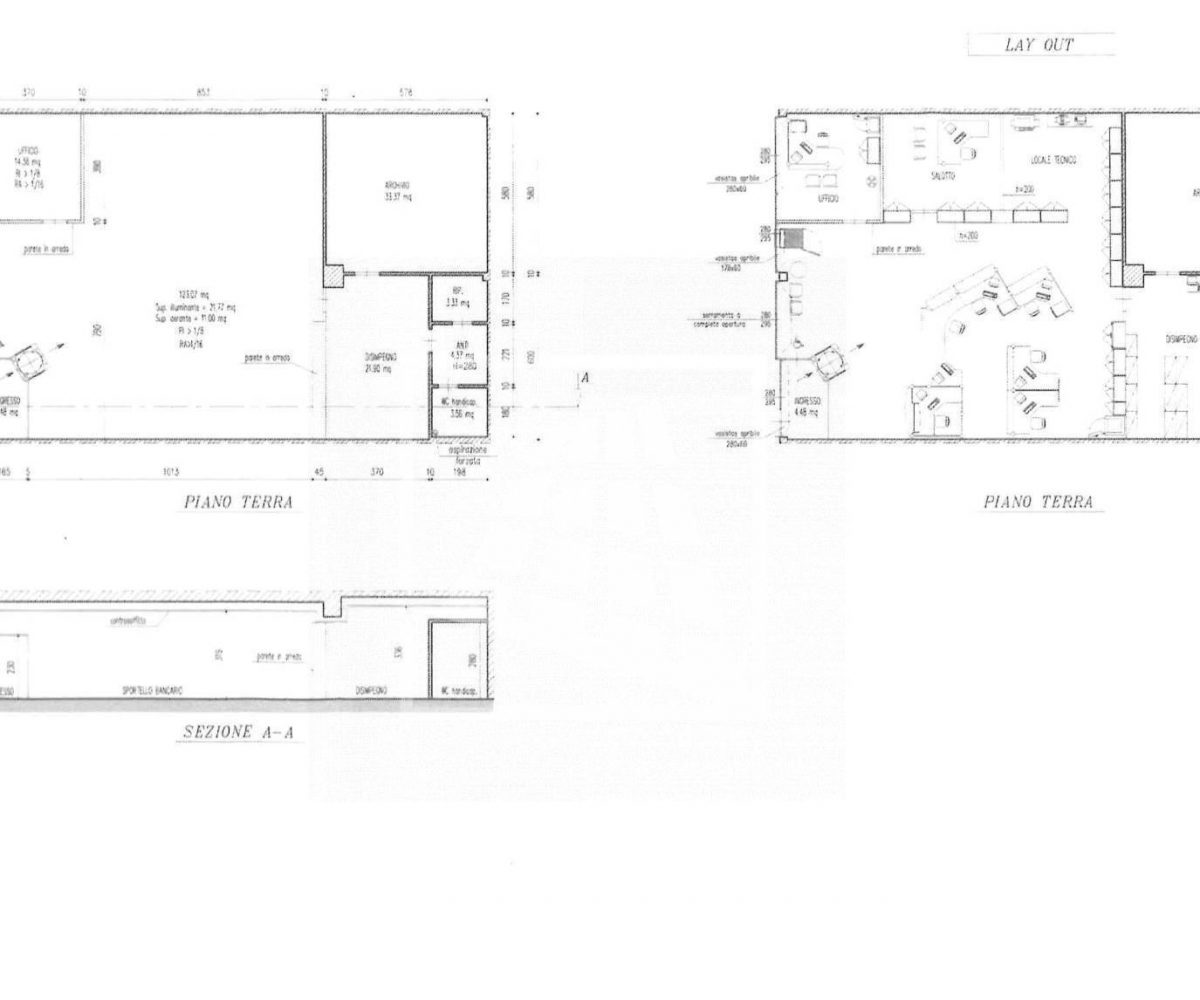
Reggio Est – Negozio (Rif. KV1066) con una superficie totale di mq 215, un ingresso e un servizio.
Il locale è personalizzabile, per la massima libertà di organizzazione degli spazi.
La struttura si presenta in buono stato di conservazione, con finiture di qualità e un’ottima illuminazione naturale.
Le utenze sono autonome e gli impianti sono a norma.
Il negozio si affaccia su una delle arterie più trafficate della città e le due vetrine di cui è dotato garantiscono un’ottima visibilità .
Inoltre l’ampia disponibilità di parcheggi esterni certamente favorisce la preferenza da parte della clientela.
La zona è molto frequentata e con una buona presenza di attività commerciali, che lo rende ideale per attirare una clientela già consolidata.
Questo locale commerciale rappresenta una grande opportunità per chi desidera un negozio in una zona di grande passaggio, con ampi spazi e ottime finiture.
Le immagini sono solo indicative di una possibile realizzazione commerciale.
- m²215
- Classe EnergeticaNon specificato
- Riferimento immobileKV1066
4 giorni fa
Richiedi maggiori informazioni
Agenzia
Altri annunci nella zona
-
Locale Commerciale In Affitto
Reggio nell'Emilia, San Maurizio
€4.500
- m²293
- Classe EnergeticaNon specificato
4 giorni faAgenzia
-
Esclusiva
Appartamento In Vendita
Reggio nell'Emilia, San Maurizio
€200.000
- Camere da letto3
- Bagni1
- m²127
- Classe EnergeticaE
- IPE241.92 kwh/㎡
2 settimane faAgenzia
-
Capannone In Vendita
Reggio nell'Emilia, San Maurizio
€1.200.000
- Logistica m²1.337
- Classe EnergeticaNon specificato
2 mesi faAgenzia


