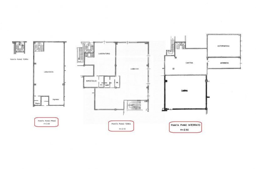
Reggio ovest – Uffici (Rif. KV1053) In direzionale di soli uffici, immobile di mq 1.000 circa che si estende su due piani collegati da scala ad uso esclusivo.
Al piano terra vi è un ingresso indipendente e cinque vetrine dotate di veneziane per una comoda gestione della luminosità interna.
I locali sono già suddivisi in numerosi vani mediante pannelli, per un flessibile utilizzo degli spazi.
Riscaldamento e raffrescamento autonomi, controsoffitti con corpi illuminanti e rete dati. Tutti gli impianti sono a norma.
Al piano interrato vi sono due grandi garage e un ampio magazzino uso archivio.
Questo ufficio è l’ideale per chi cerca un ambiente professionale e funzionale, in una zona strategica e ben servita.
Inoltre, la presenza di altri uffici e attività commerciali nelle vicinanze rende la zona dinamica e vivace, perfetta per creare sinergie e opportunità di business.
- m²1.000
- Classe EnergeticaD
- IPE139.57 kwh/㎡
- Riferimento immobileKV1053
1 giorno fa
Richiedi maggiori informazioni
Agenzia
Altri annunci nella zona
-
Esclusiva
Appartamento In Vendita
Reggio nell'Emilia, Gardenia
€259.000
- Camere da letto2
- Bagni1
- m²83
- Classe EnergeticaE
- IPE261.43 kwh/㎡
2 giorni faAgenzia
-
Studio/ufficio In Affitto
Reggio nell'Emilia, Gardenia
€1.500
- m²173
- Classe EnergeticaNon specificato
2 settimane faAgenzia
-
Esclusiva
Studio/ufficio In Vendita
Reggio nell'Emilia, Gardenia
€135.000
- m²85
- Classe EnergeticaD
- IPE203.88 kwh/㎡
4 settimane faAgenzia


