Reggio Nord – Negozio a reddito (Rif. KV0393)
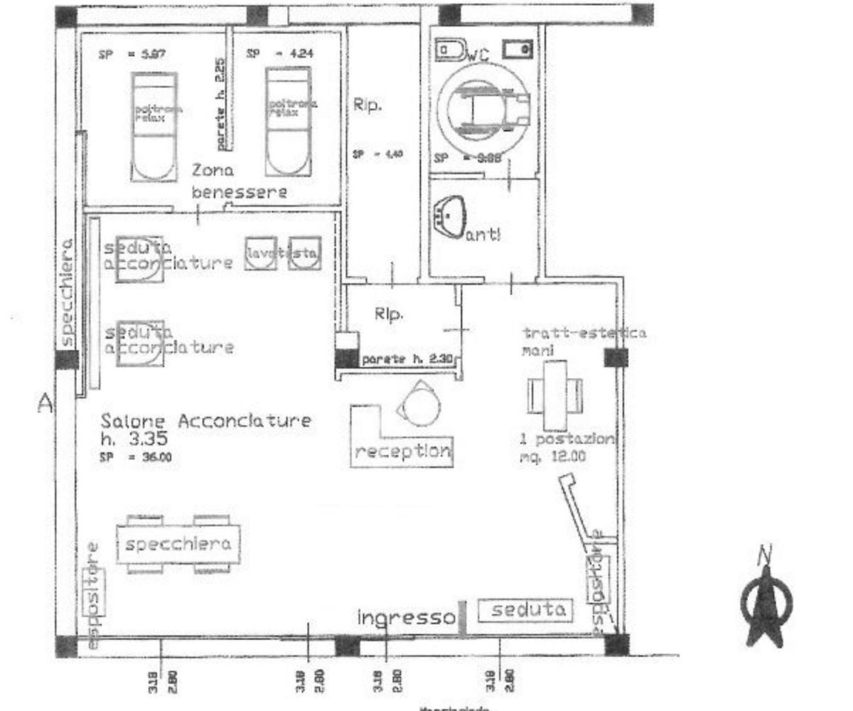
Il locale commerciale ha una superficie di 75 mq con due importanti vetrine che affacciano direttamente su strada di passaggio.
Il negozio comprende due ingressi indipendenti, una zona open space con reception ed area attesa per la clientela, diverse zone dedicate ai servizi alla persona ed un bagno per diversamente abili.
Le vetrine garantiscono luminosità agli interni, una buona visibilità e una forte presenza sul territorio.
Lo stato di conservazione è ottimo, l’immobile è stato recentemente ristrutturato, compresi gli impianti i quali sono completamente autonomi e a norma.
La disponibilità di parcheggi antistanti l’immobile agevola la sosta della clientela e vi è la possibilità di area condominiale sul lato come distesa.
Attualmente è dato in locazione, ma potrebbe rappresentare un’ottima opportunità di investimento per chi è alla ricerca di un immobile commerciale.





