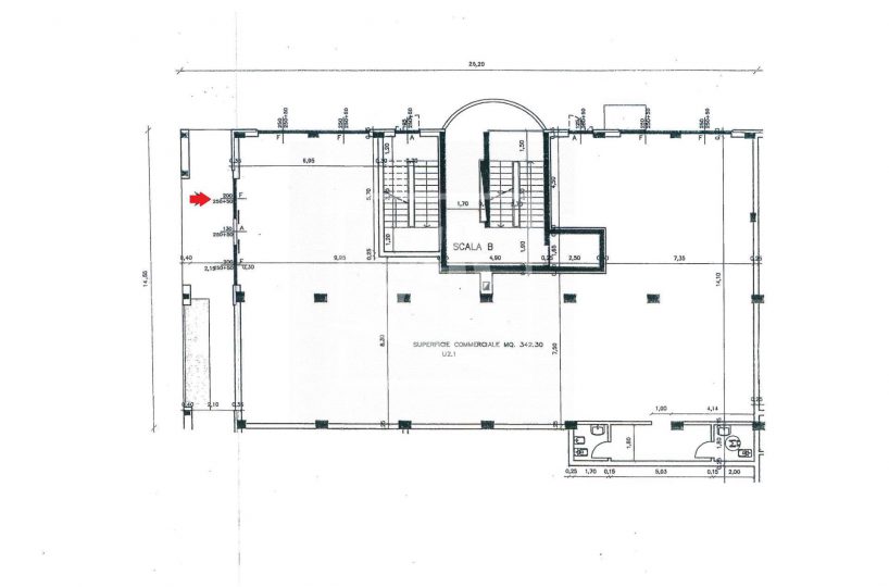
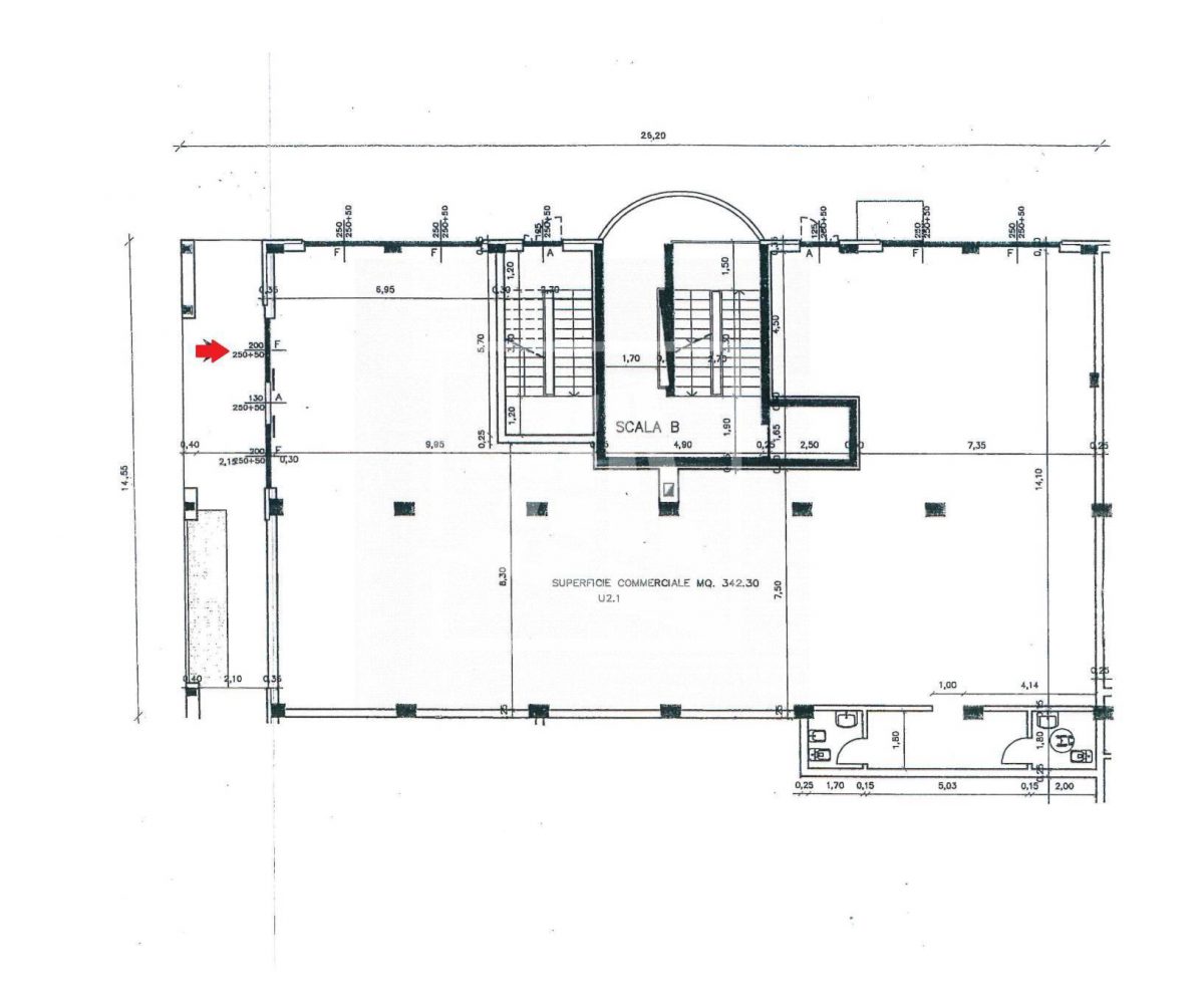
Reggio Ovest – Locale commerciale (Rif. KV0321) con una superficie totale di 343 metri quadrati e un’altezza di m 3.
Il negozio è un ampio open space con doppio ingresso e doppi servizi, di cui uno attrezzato per disabili.
Una delle caratteristiche principali di questo immobile, è presenza di ben cinque vetrine, su due lati dell’immobile, che lo rendono ben visibile ed individuabile da una delle strade più trafficate della zona.
Il riscaldamento e il raffrescamento sono autonomi da soffitto, rete dati e controsoffitti con corpi illuminanti completano la dotazione degli impianti interni.
E’ inoltre presente all’esterno un impianto insegna. Tutti gli impianti sono a norma.
L’immobile gode del vantaggio di un ampio parcheggio pubblico a servizio dello stabile che agevola la sosta della clientela.
Il contesto in cui si trova questo locale è molto dinamico e vivace, con la presenza di numerosi negozi, uffici e attività commerciali che garantiscono un costante flusso di persone.
Questo negozio rappresenta un’ottima opportunità per chi desidera ampi spazi in una delle zone commerciali più strategiche della città .
- m²343
- Classe EnergeticaD
- IPE175.05 kwh/㎡
- Riferimento immobileKV0321
3 mesi fa
Richiedi maggiori informazioni
Agenzia
Altri annunci nella zona
-
Studio/ufficio In Affitto
Reggio nell'Emilia, Meridiana
€8.500
- m²810
- Classe EnergeticaNon specificato
2 settimane faAgenzia
-
Studio/ufficio In Affitto
Reggio nell'Emilia, Meridiana
€3.900
- m²320
- Classe EnergeticaNon specificato
2 settimane faAgenzia
-
Studio/ufficio In Affitto
Reggio nell'Emilia, Meridiana
€1.900
- m²165
- Classe EnergeticaNon specificato
2 settimane faAgenzia


