Reggio Nord – Locale commerciale (Rif.KV0302)
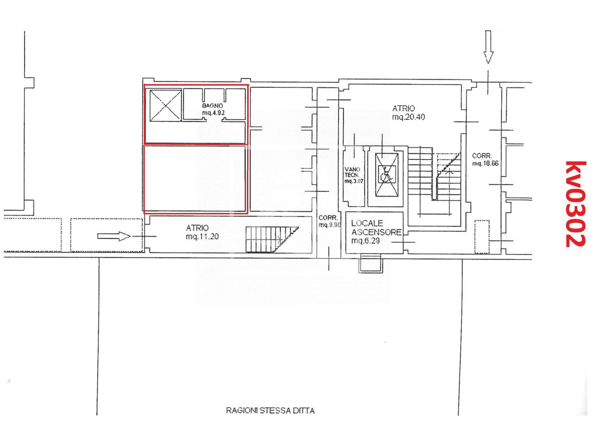
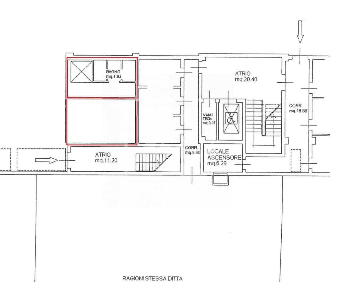
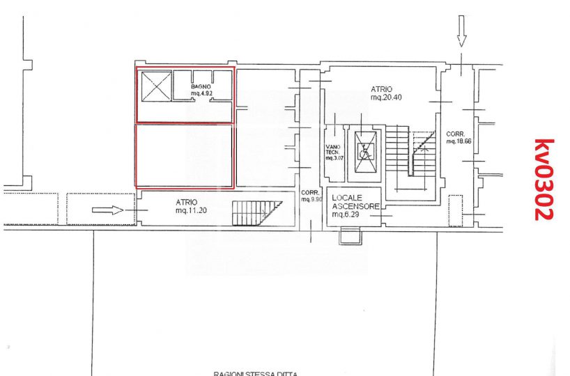
Negozio dotato di doppio ingresso, sviluppato al piano terra per una superficie di circa 82 mq con quattro ampie vetrine su tre lati che lo rendono molto luminoso e visibile.
L’impianto di riscaldamento e raffrescamento è centralizzato, con contacalorie e con split a soffitto.
I locali sono controsoffittati e con corpi illuminanti, è anche presente un impianto antifurto per garantire la sicurezza della merce e dei beni al suo interno.
Una scala a chiocciola conduce al piano seminterrato, dove troviamo un ampio ripostiglio e un doppio servizio igienico.
Completa la proprietà un box auto al piano interrato.
Il locale si trova nel prestigioso direzionale commerciale di via Cadoppi, in un contesto dinamico e ben servito oltre che facilmente individuabile, ideale per attività commerciali di vario genere.
Questo locale commerciale offre un’ottima opportunità per chi desidera avviare una nuova attività in una zona di grande passaggio e visibilità , in un contesto moderno e ben mantenuto.
Attualmente occupato dalla proprietà , l’immobile sarà disponibile a circa 3-6 mesi dal compromesso.
Per informazioni e appuntamenti Agenzia Via Cadoppi 8/A (RE)- Tel: 0522512431 – Mail commerciale7@piazzaffarisrl.it





