Reggio Nord – Magazzino (Rif. JA8131)
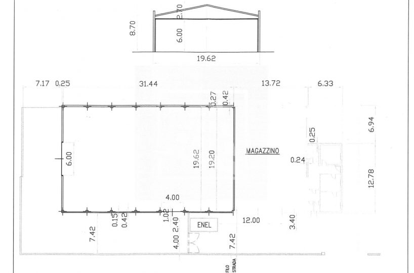
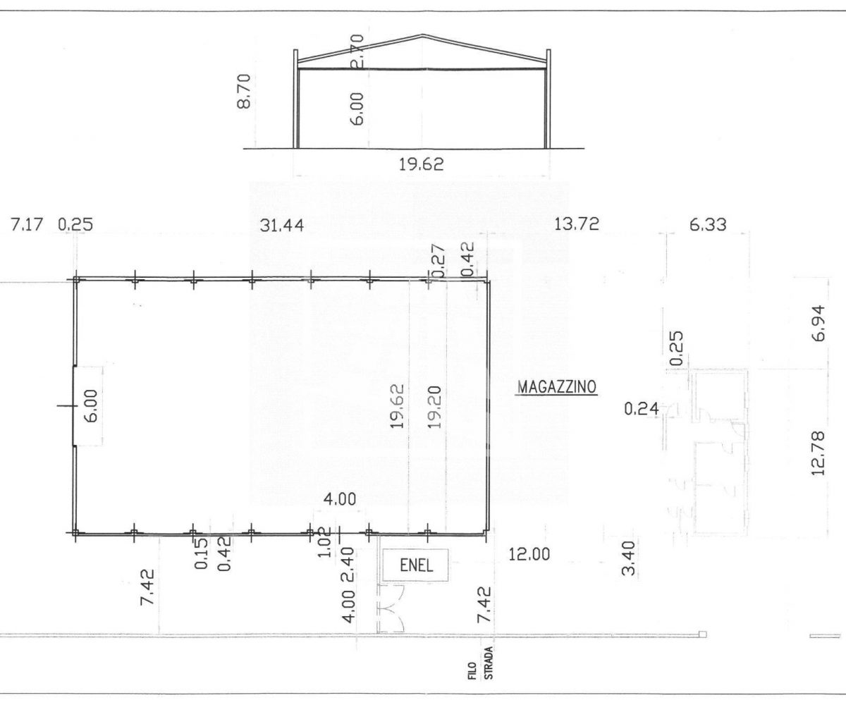
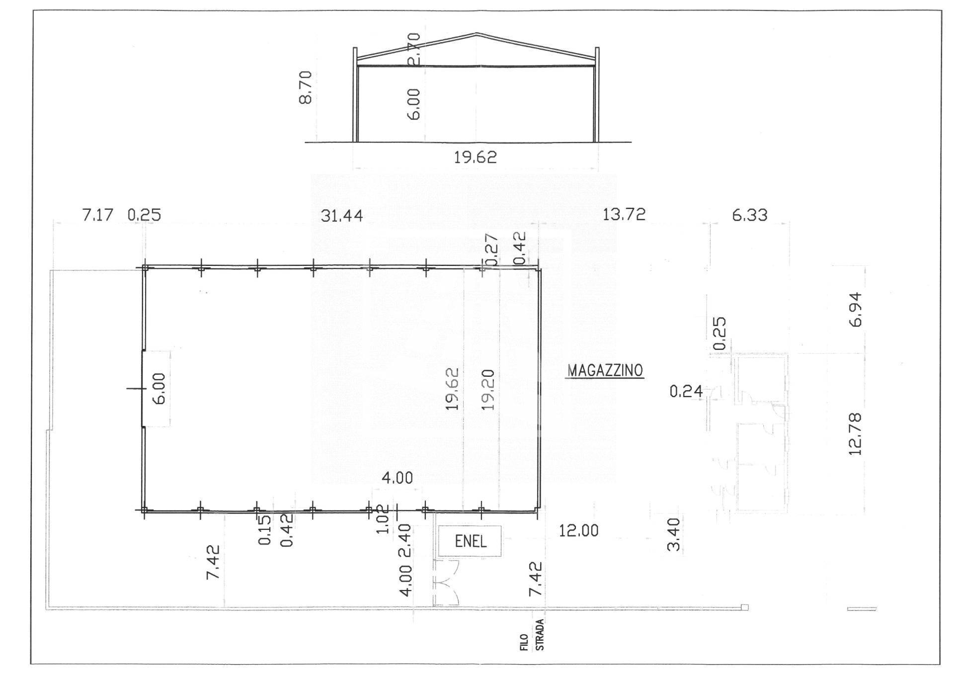
Nella zona industriale delle Reggiane proponiamo Magazzino di mq 620 con due portoni carrai, due vani uso ufficio e due servizi.
L’altezza sotto trave di 6 metri consente un ampio spazio per la movimentazione di merci.
L’ impianto elettrico con corpi illuminanti, prese 220V e 380V, e l’impianto antincendio sono a norma.
Vi è inoltre un area cortiliva ad uso esclusivo di mq 420 recintata e con cancello carraio.
Nessuna spesa condominiale, sarà disponibile da Gennaio 2026.
Questo capannone è la soluzione ideale per chi cerca uno spazio funzionale e ben posizionato per la propria attività.

Posizione