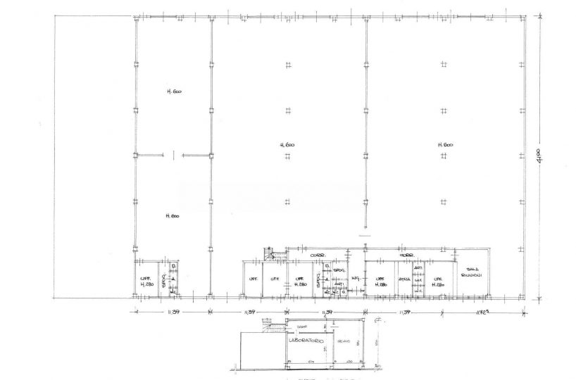
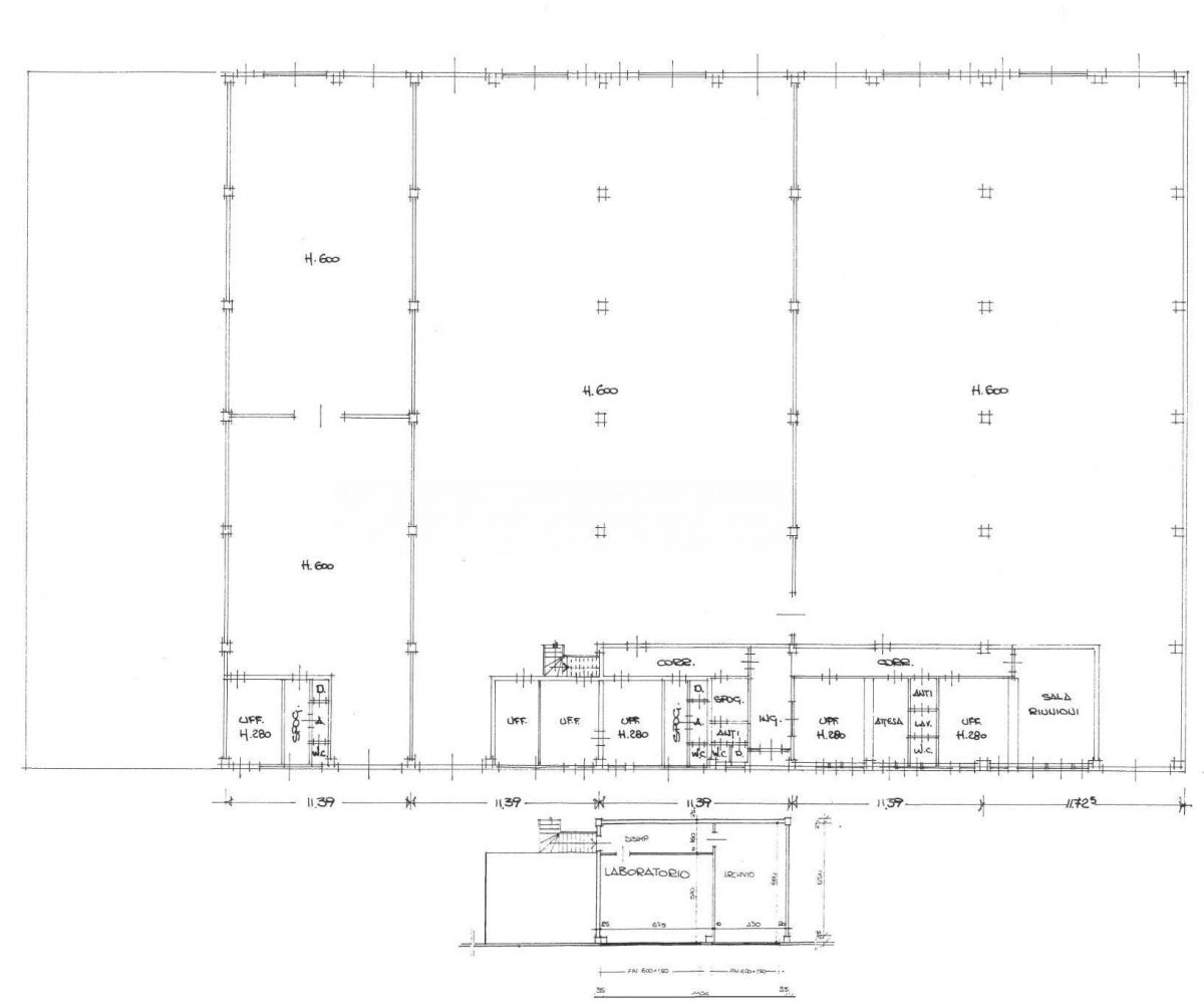
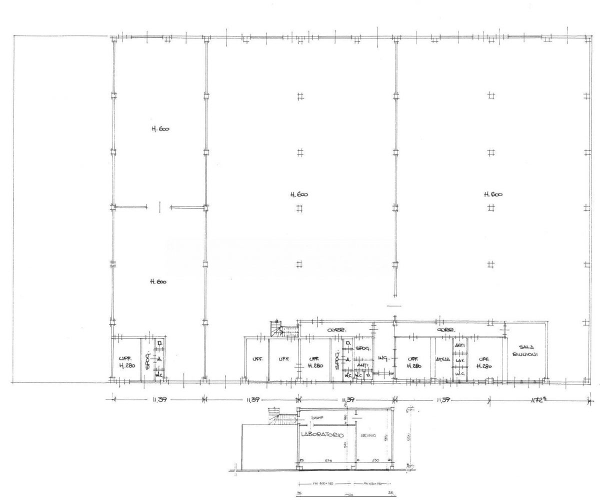
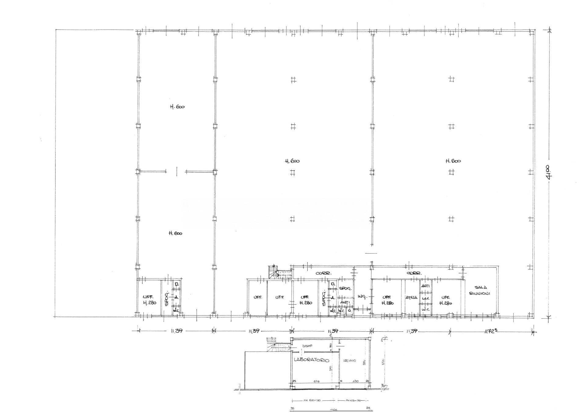
Quattro Castella – Capannone industriale (Rif. JA2989/A) con una superficie totale di mq 2.680 così suddivisi:
– zona produttiva mq 2.053 per altezza m 6,00 con otto portoni carrai, riscaldamento, prese 220 e 380.
– magazzino prefabbricato con pannelli coibentati aderente al fabbricato principale di mq 247
– zona uffici e servizi, al piano terra con ingresso indipendente, di mq 296, divisi in vani, con spogliatoi e servizi.
– zona laboratorio e archivio al piano primo di mq 84
L’immobile è in buone condizioni generali, la copertura è stata completamente rifatta con pannelli coibentati ed è presente l’anello antincendio.
Ampia area cortiliva per il parcheggio e la movimentazione merci, recintata e con cancello carraio.
L’immobile è ubicato in una zona industriale dinamica e in crescita, ben servita e facilmente raggiungibile.
In definitiva, si tratta di una soluzione immobiliare completa e funzionale, ideale per attività che necessitano di ampi spazi e di una struttura ben organizzata.
- Logistica m²2.680
- Classe EnergeticaNon specificato
- Riferimento immobileJA2989/A
2 mesi fa
Richiedi maggiori informazioni
Agenzia
Altri annunci nella zona
-
Capannone In Vendita
Quattro Castella
€1.953.000
- Logistica m²2.194
- Classe EnergeticaA1
- IPE7.03 kwh/㎥
2 mesi faAgenzia
-
Capannone In Affitto
Quattro Castella
€9.500
- Logistica m²2.194
- Classe EnergeticaA1
- IPE7.03 kwh/㎥
2 mesi faAgenzia
-
Esclusiva
Capannone In Vendita
Quattro Castella
€3.550.000
- Logistica m²7.310
- Classe EnergeticaD
- IPE367.48 kwh/㎡
2 mesi faAgenzia


