Pieve Modolena – Villa abbinata di nuova costruzione (Rif.CT0185-1)
Villa abbinata di nuova costruzione, con una superficie di circa 160 mq e un ampio giardino privato su tre lati.
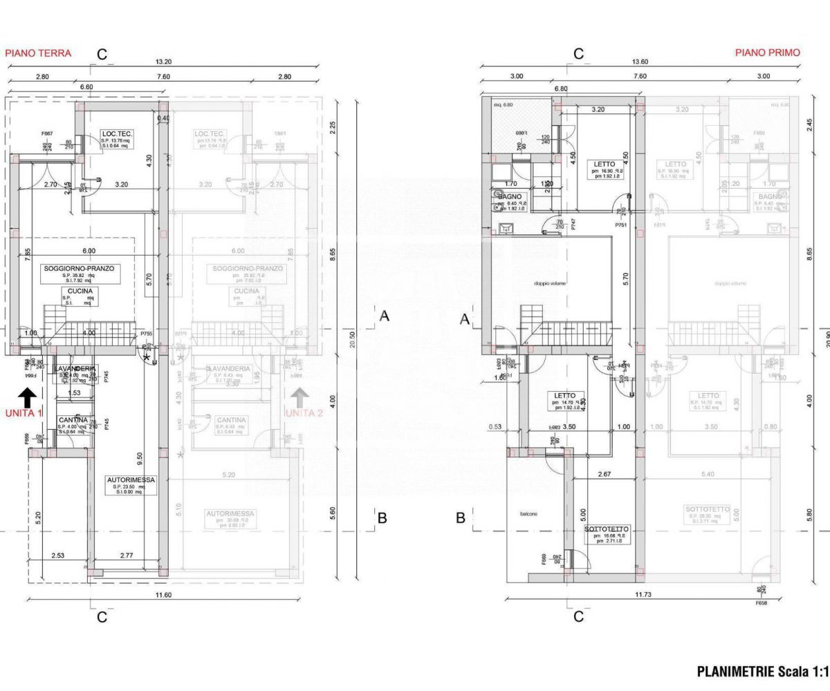
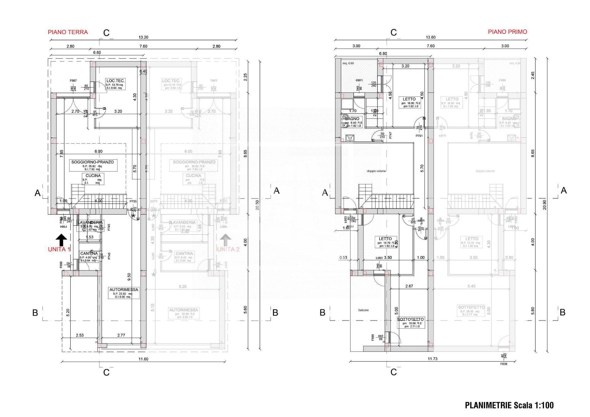
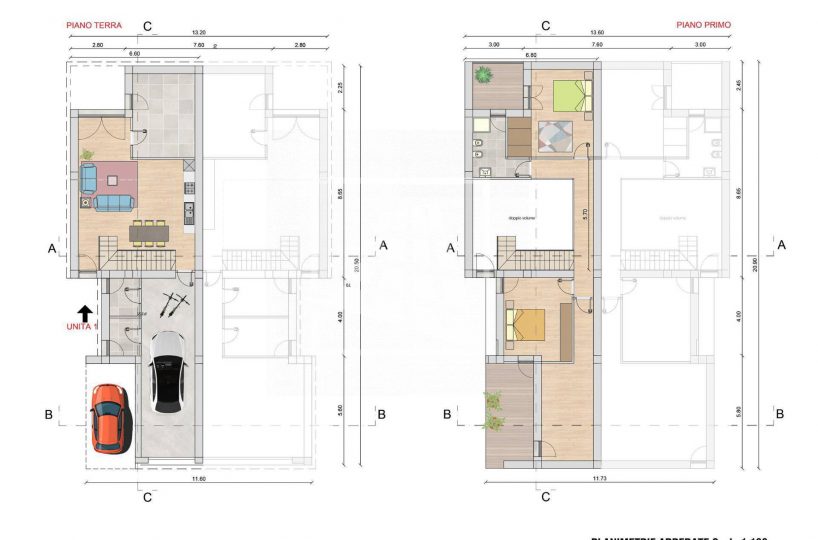
Il progetto architettonico si distingue per l’eleganza degli spazi interni: al piano terra, la zona giorno è dominata da un ampio soggiorno con angolo cottura caratterizzato da un suggestivo doppio volume, che dona luminosità e respiro all’intero ambiente.
Il piano è completato da locali funzionali come lavanderia, locale tecnico e cantina, oltre a un generoso garage con accesso diretto.
Al piano primo si sviluppa la zona notte, composta da tre camere matrimoniali, tutte di ampie dimensioni, servite da un bagno e due balconi che offrono un piacevole affaccio esterno.
Costruita secondo i più moderni standard, la villa sarà dotata di riscaldamento a pavimento, pannelli fotovoltaici, predisposizione per l’aria condizionata e impianto d’allarme.
L’elevato isolamento termico e le tecnologie impiegate garantiranno comfort abitativo e bassissimi costi di gestione.
Le immagini sono fornite al solo scopo di illustrare le potenzialità dell’immobile e hanno valore puramente indicativo, non costituendo elemento contrattuale.
Classe Energetica A.





