San Bartolomeo – Villa singola di nuova costruzione (Rif. CT0176-2)
Villa con 180 mq di superficie, attualmente in costruzione, disposta su due livelli.
Al piano terra si viene accolti da un ingresso che conduce a una luminosa zona living open space con cucina di oltre 35 mq, l’ambiente si affaccia direttamente sul giardino privato attraverso ampie vetrate, garantendo una continuità tra interni ed esterni.
Il piano è completato da un funzionale bagno/lavanderia di servizio.
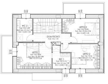
Il primo piano è interamente dedicato alla zona notte, organizzata attorno a un disimpegno: ospita due camere matrimoniali e una camera padronale di oltre 16 mq servita da bagno privato.
Completano il livello un secondo bagno, un ripostiglio e due balconi.
L’immobile è impreziosito da un suggestivo tetto in legno a vista e da finiture di alto livello che saranno a completa scelta dell’acquirente, permettendo una totale personalizzazione degli ambienti.
La proprietà include un garage e un giardino privato di 700 mq che circonda la casa.
L’immobile si trova in una zona residenziale tranquilla e vicina a tutti i servizi.
Una soluzione ideale per chi cerca l’efficienza di una nuova costruzione e la possibilità di rifinire la casa dei propri sogni.
Classe energetica A4.




