Zona Canali – Villa abbinata di nuova costruzione (Rif. CT0160-4)
Villa abbinata di nuova edificazione, così disposta:
Al piano terra: ingresso su luminoso soggiorno con ampie vetrate che si affacciano sul portico privato di 10 mq circa, ideale per pranzi all’aperto e momenti di relax, una cucina abitabile, piccolo disimpegno e bagno/lavanderia, Sempre al piano terra cantina e garage singolo, ai quali si accede direttamente dalla casa.
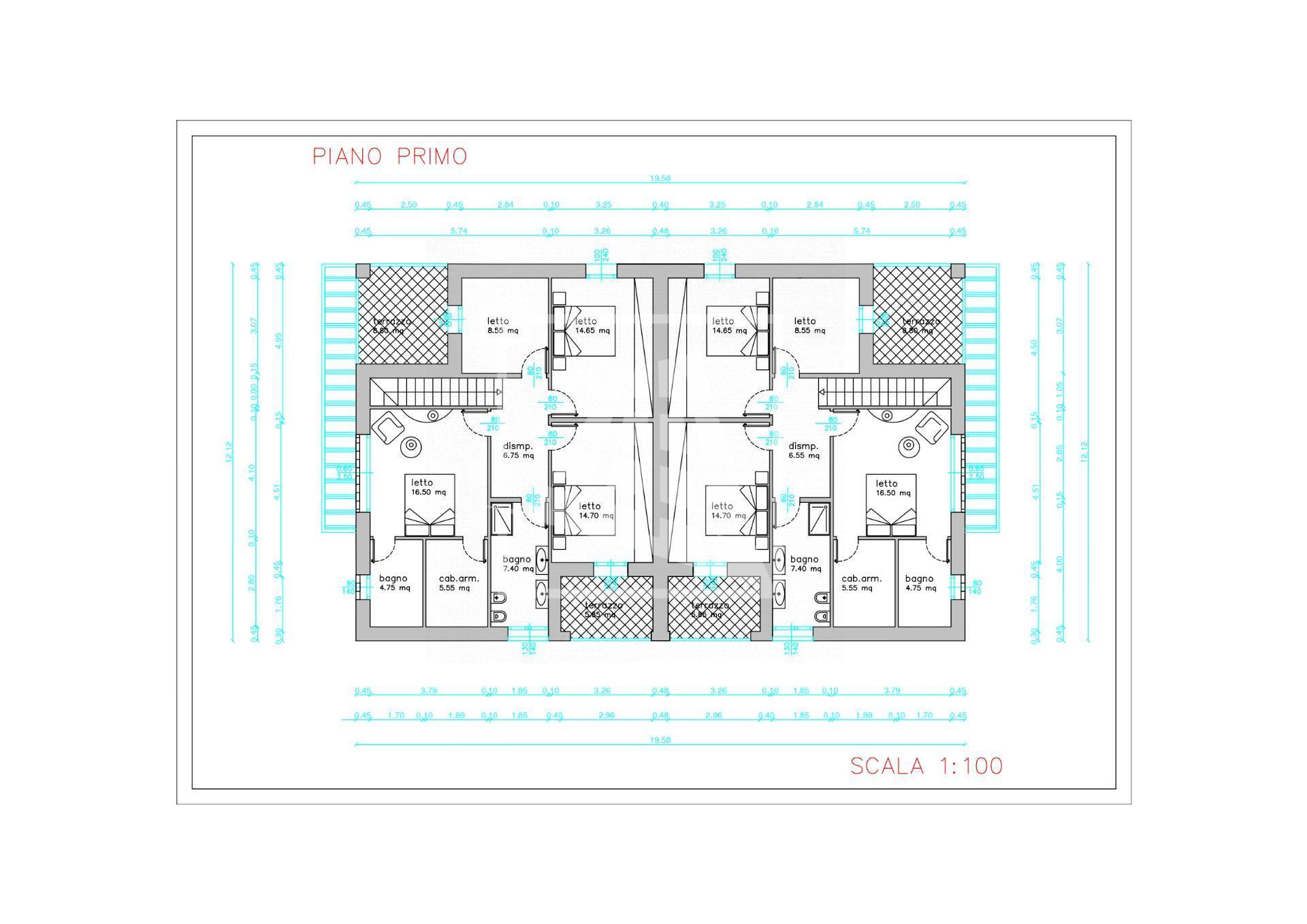
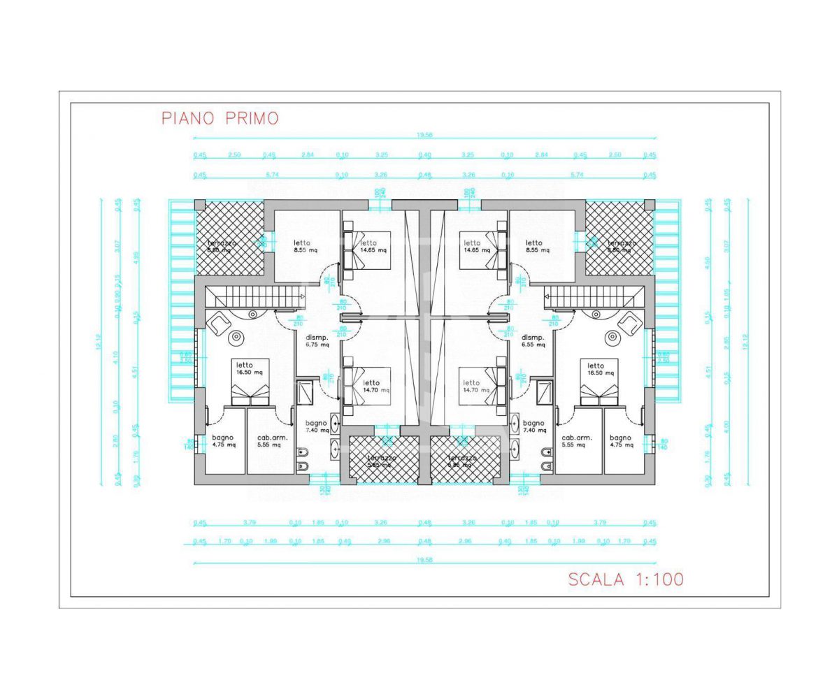
Il Piano primo, raggiungibile tramite una scala interna, ospita quattro camere da letto, perfette per famiglie o per chi desidera spazio extra per ospiti o hobby, la camera padronale, vanta un bagno privato ed una cabina armadio, per un’esperienza di lusso quotidiana, le altre tre camere, spaziose e luminose, condividono un secondo bagno, due terrazzi completano questo livello, offrendo ulteriori spazi esterni.
Completa la proprietà giardino privato su due lati dell’abitazione.
L’immobile verrà realizzato con i più attuali criteri di costruzione e con un ottimo capitolato, come riscaldamento a pavimento, pannelli solari, impianto fotovoltaico e normativa antisismica.
Situata in una tranquilla strada chiusa, questa proprietà rappresenta un’oasi di pace nel cuore di una zona residenziale esclusiva, circondata dal verde e con facile accesso a tutti i servizi.
Ampia possibilità di personalizzazione delle finiture interne.
Le immagini sono fornite al solo scopo di illustrare le potenzialità dell’immobile e hanno valore puramente indicativo, non costituendo elemento contrattuale.
Classe energetica A4.





