Regina Pacis – Mansarda con due camere (Rif.CT0158-4)
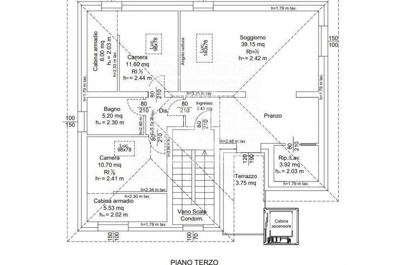
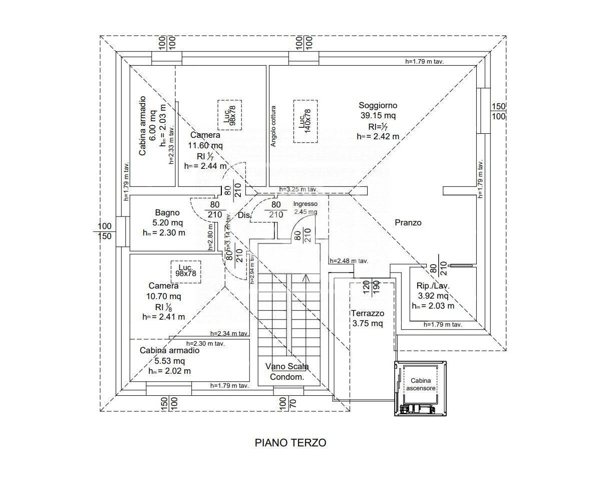
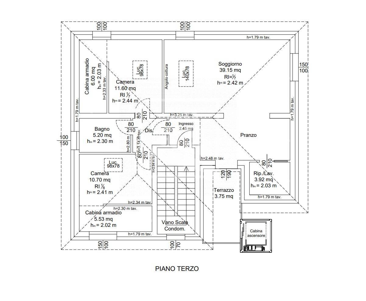
Mansarda di 115 mq commerciali, situata al terzo ed ultimo piano, servita da ascensore.
L’immobile, attualmente in fase di ristrutturazione, si distingue per il suggestivo tetto in legno a vista.
Dispone di un’ampia zona giorno open space di 40 mq pensata per la massima vivibilità , che include: ingresso, salone con cucina a vista, un terrazzino e un ripostiglio/lavanderia.
La zona notte è funzionale e ben distribuita, ospitando due camere da letto matrimoniali, ciascuna con cabina armadio, e un bagno finestrato, con la possibilità di ricavare un secondo bagno.
L’appartamento rappresenta la perfetta combinazione di modernità , efficienza e comfort.
L’unità immobiliare sarà dotata di impianti autonomi, infissi in PVC con vetri termici completi di zanzariere e avvolgibili elettrici, videocitofono, e beneficerà di un cappotto esterno.
Sono presenti le predisposizioni per l’impianto di condizionamento (punti split in zona giorno e camere) e per l’addolcitore.
La ristrutturazione attenta ai dettagli e il miglioramento energetico garantiranno una futura Classe B, in linea con la direttiva europea Case Green”. L’acquirente potrà inoltre usufruire dell’incentivo fiscale “Bonus Casa 2025” recuperabile in 10 anni.
La palazzina, costruita negli anni ’60, è anch’essa in fase di completa riqualificazione urbana: sarà moderna, composta da sole 4 unità immobiliari, priva di barriere architettoniche e accessibile a tutti, con spese condominiali minime.
Completa la proprietà un posto auto scoperto di pertinenza.
La posizione dell’immobile è strategica e centrale, risultando ben servita dai mezzi di trasporto pubblici e vicina a scuole, negozi, ristoranti e tutti i principali servizi.
Consegna Gennaio-Febbraio 2026.
Per informazioni Agente Immobiliare Paterlini Cristina 3463135696 -paterlini@piazzaffarisrl.it“





