Villaggio Architetti – Appartamento nuovo con tre camere (Rif.CT0129-2)
Nuovo appartamento di ampia metratura, posto al primo piano, in elegante contesto residenziale di nuova edificazione.
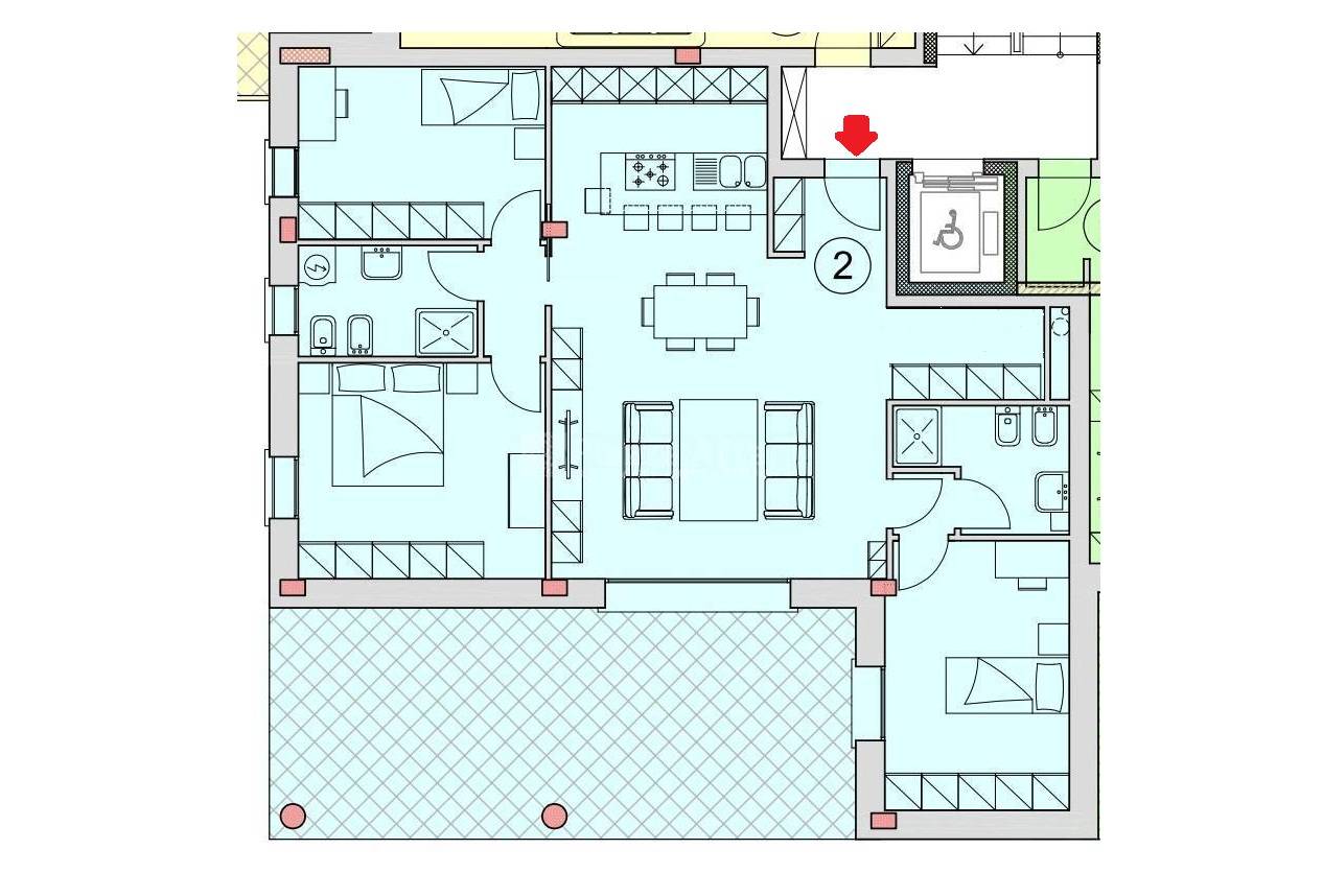
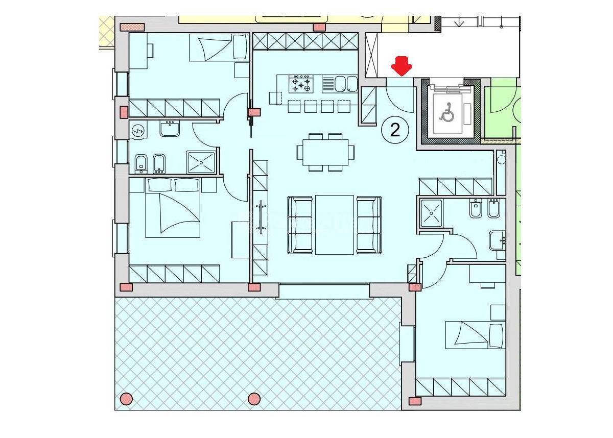
L’appartamento, raggiungibile con ascensore, è composto da ingresso, un ripostiglio/guardaroba con possibilità di adibirlo a lavanderia, soggiorno con affaccio su ampia loggia di 36 mq, cucina a vista, primo disimpegno che conduce alla zona notte che comprende una camera da letto matrimoniale, una camera singola, bagno finestrato e secondo disimpegno che consente l’accesso alla terza camera da letto singola e al secondo bagno.
Possibilità di acquistare un ampio garage al piano terra.
Soluzione abitativa particolarmente adatta a chi desidera vivere in spazi ampi potendo personalizzare l’utilizzo dei vari ambienti.
L’alloggio è inserito in un’elegante palazzina di poche unità , che è stata realizzata secondo i più moderni criteri costruttivi, con riscaldamento a pavimento alimentato da teleriscaldamento autonomo, impianto di raffrescamento a split, impianto fotovoltaico privato, impiantistica smart, pavimenti in legno (ad eccezione di cucina e bagni dove è presente la ceramica), scuri esterni e moderni frangisole dei balconi in alluminio, ampie vetrate.
L’immobile si trova in tranquillo quartiere residenziale di prestigio e di recente costruzione, nella zona Sud di Reggio Emilia, ottimamente servita e dotata di numerose aree verdi a parco e percorsi ciclo-pedonali.
Classe Energetica A2.
Pronta consegna. Libero subito.
Per informazioni Sede di Via Cadoppi 8/B 0522512431 (anche messaggi WhatsApp) – mail segreteria@piazzaffarisrl.it



