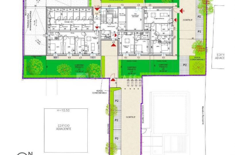
Via Emilia All’ Angelo – Appartamento di nuova costruzione, 2 camere e balcone Rif. (CT0115-15)
Appartamento di circa 80 mq in palazzina di nuova costruzione, posto al terzo e ultimo piano servito da ascensore.
Si compone di ingresso su soggiorno con angolo cottura e balcone, disimpegno, bagno finestrato
due camere di cui una singola e una matrimoniale.
Completa la proprietà una cantina di 5 mq di pertinenza al piano terra.
Possibilità di acquistare il Garage.
La palazzina dispone di deposito bici comune, sala condominiale per riunioni e area gioco bimbi;
posta in un contesto abitativo tranquillo, a due passi dal centro storico e comoda ai principali servizi e mezzi di trasporto.
Gli immobili sono stati realizzati con tecniche e soluzioni tecnologiche di ultima generazione volte a garantire il massimo comfort e funzionalità , nel rispetto per l’ambiente e il contenimento dei consumi.
Numerose le finiture extra capitolato di pregio, molte delle quali personalizzabili, fra le quali riscaldamento a pavimento, impianto di climatizzazione con pompa di calore per il raffrescamento e
la produzione di acqua calda sanitaria, split nella zona giorno e nella zona notte, videocitofono, porta blindata con serratura di tipo europeo, impianto fotovoltaico, pozzetto con punto acqua nei giardini..
Classe Energetica A4.
Disponibile da Aprile 2025.





