Reggio Ovest – Immobile Commerciale (Rif. CA8533/A)
Locale commerciale completamente indipendente e disposto su tre piani, per una superficie complessiva di circa mq 1.710 composto da:
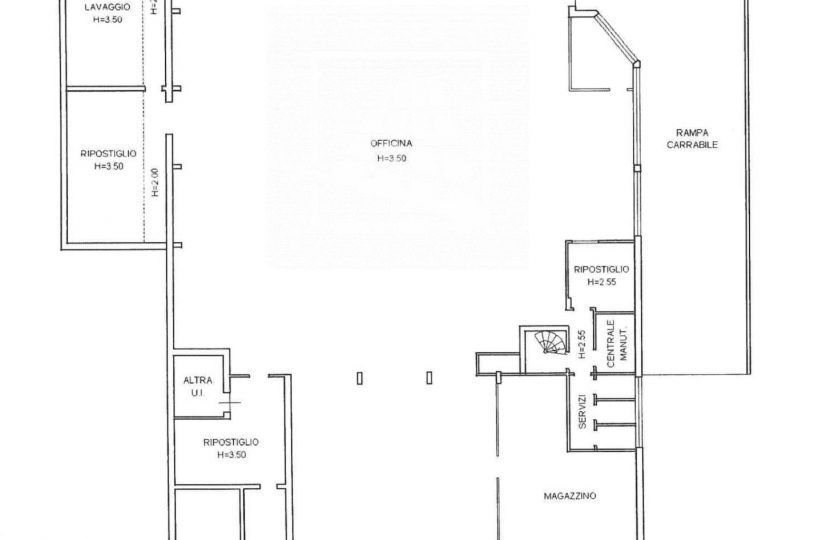
– piano seminterrato accessibile tramite rampa di mq 670 per altezza m 3,50 con officina, magazzino, servizi, centrale termica, ripostigli e lavaggio, sono presenti cinque portoni indipendenti.
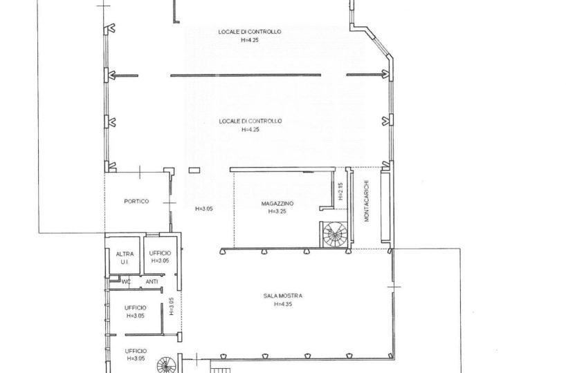
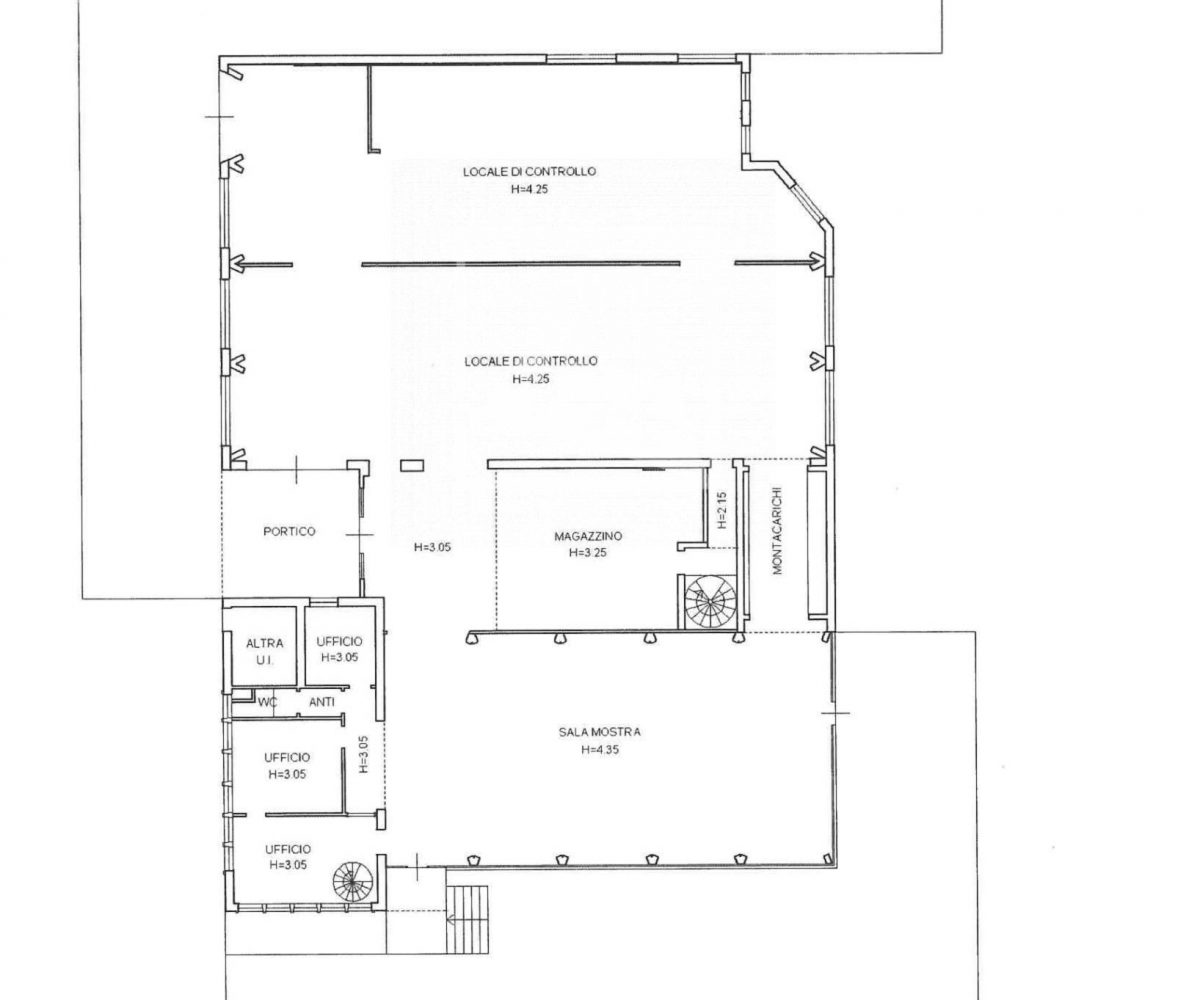
– piano rialzato di mq 595 con sala mostra e magazzino altezza m 4,35, deposito altezza m 3,25 e uffici, due portoni indipendenti e accessi pedonali.
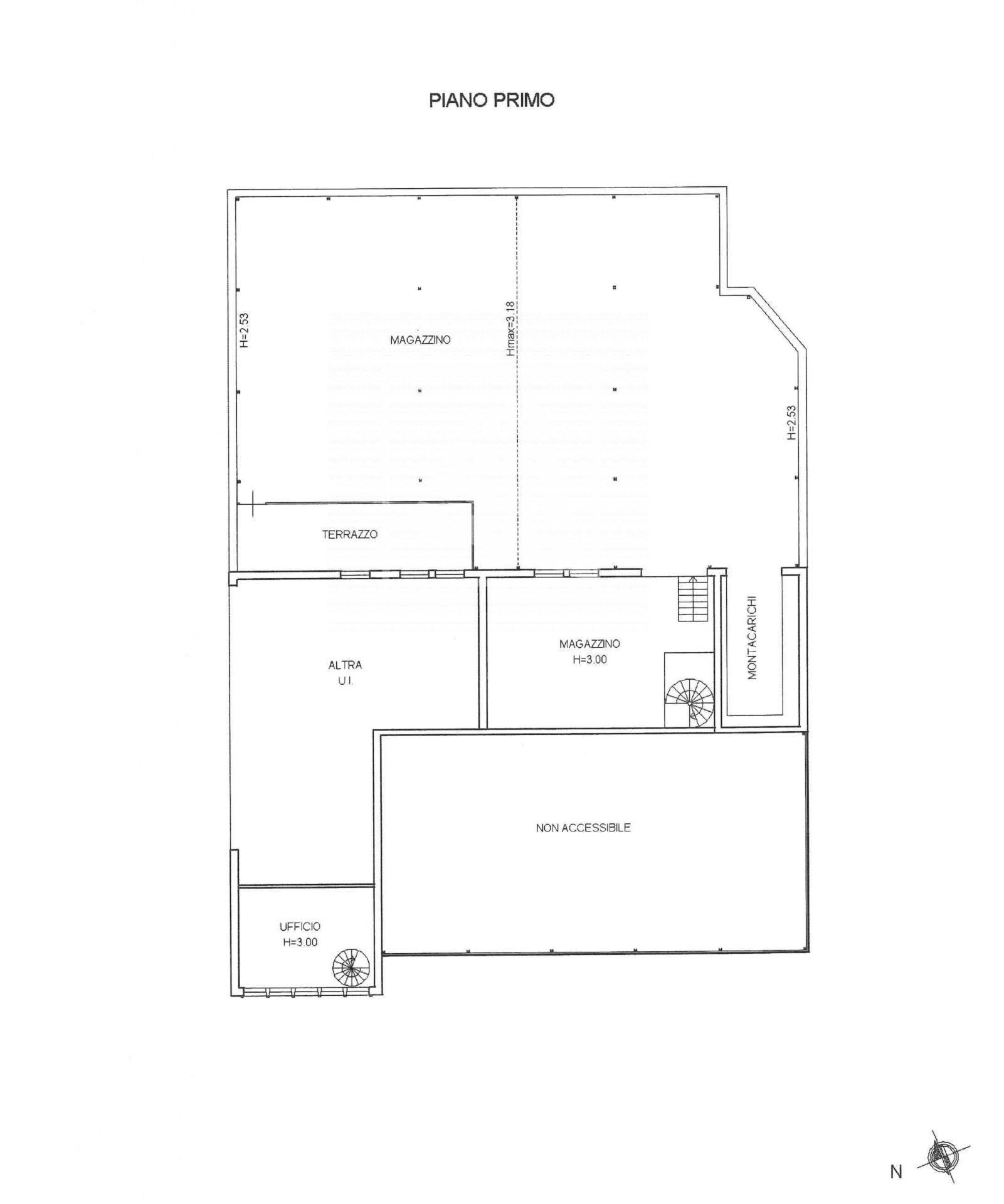
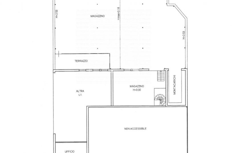
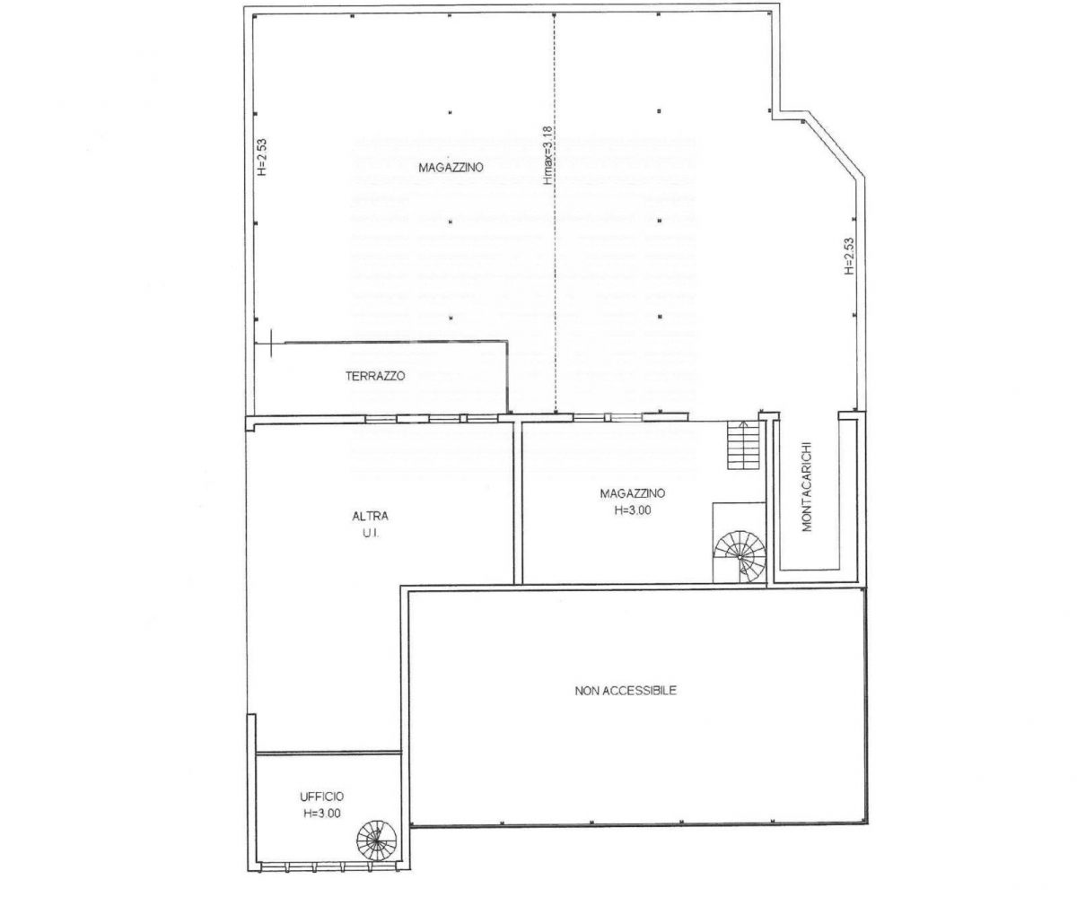
– piano primo di mq 445, di cui magazzino con montacarichi di mq 359 per altezza m 2,53, altro magazzino con altezza m 3,00 e ufficio.
– ampia area cortiliva privata recintata e con cancello carraio.
La sala mostra ha ben 7 ampie vetrate che corrono su due lati del locale, garantendo luminosità e ottima visibilità dalla strada su cui si affaccia l’immobile.
L’immobile è in buono stato di manutenzione, tutti gli impianti sono autonomi e a norma.
La posizione strategica del locale, in una zona di forte passaggio e ben collegata con i mezzi pubblici, lo rende ideale per attività commerciali che desiderano massimizzare la loro visibilità e raggiungere un ampio pubblico.
Non perdere l’opportunità di dare vita al tuo business in una location di prestigio.

Posizione