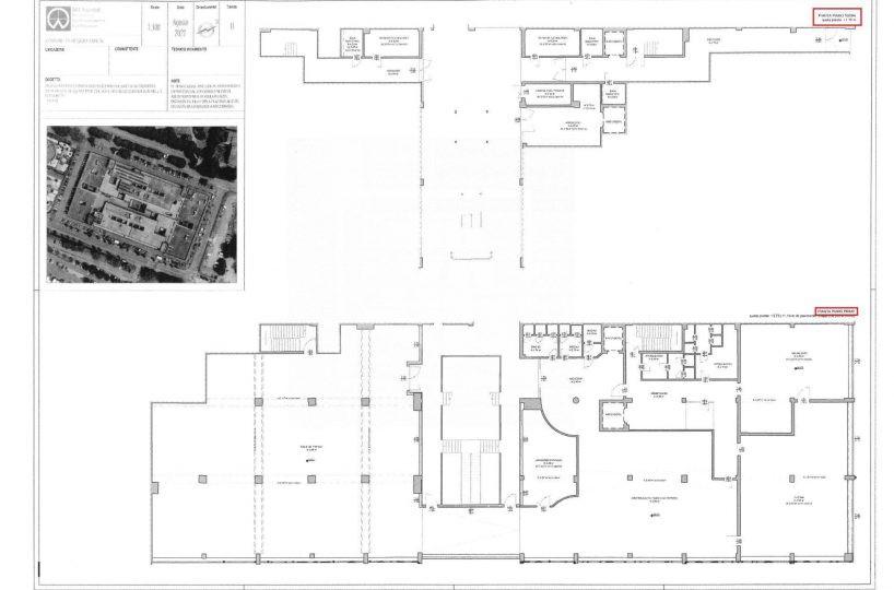
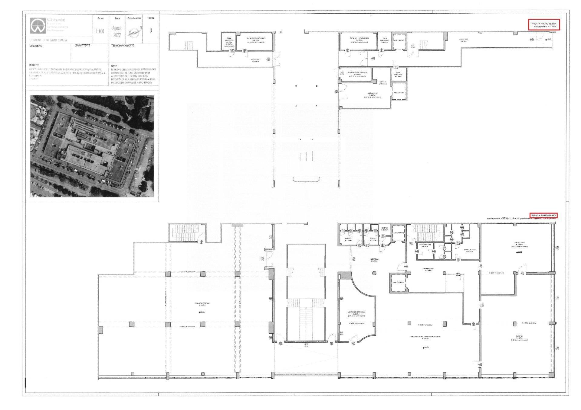
Reggio Ovest – Spazio Commerciale (Rif. CA7774/1) In contesto direzionale spazio commerciale di complessivi mq. 1.689 circa così composti:
piano terra: tre ingressi, due vani scala e due ascensori, magazzini e vani tecnici per una superficie di mq. 286 circa.
piano primo: una superficie di mq. 1.403 circa con accessi completamente indipendenti, ampi vani e servizi.
Teleriscaldamento e teleraffrescamento autonomo canalizzato, controsoffitti con corpi illuminanti.
I vasti open space sono suddivisibili a piacimento per una notevole flessibilità di utilizzo.
L’immobile è posto in un centro direzionale di una zona commerciale strategica ben collegata e servita.
- m²1.689
- Classe EnergeticaF
- IPE75.29 kwh/㎡
- Riferimento immobileCA7774/1
7 mesi fa
Richiedi maggiori informazioni
Agenzia
Altri annunci nella zona
-
Studio/ufficio In Affitto
Reggio nell'Emilia, Meridiana
€8.500
- m²810
- Classe EnergeticaNon specificato
2 settimane faAgenzia
-
Studio/ufficio In Affitto
Reggio nell'Emilia, Meridiana
€3.900
- m²320
- Classe EnergeticaNon specificato
2 settimane faAgenzia
-
Studio/ufficio In Affitto
Reggio nell'Emilia, Meridiana
€1.900
- m²165
- Classe EnergeticaNon specificato
2 settimane faAgenzia


