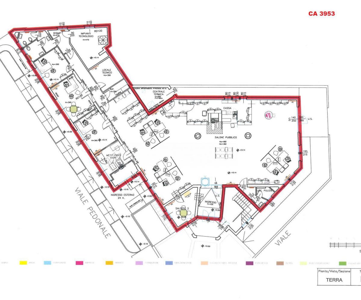
Reggio Viali – Negozio (Rif. CA3953) Negozio/ufficio mq.400 così suddiviso:
– Locale ingresso su viale pedonale
– Ampio salone open space con controsoffitti a cassettoni e finestre con sopraluce a semicerchio.
– Quattro vani delimitati da pareti e sopraluce a semicerchio, ognuno con vetrina.
– Un vano con finestra e sopraluce a semicerchio.
– Due servizi finestrati con antibagno
– Due locali tecnici
– Un ripostiglio con lavandino (locale pulizie)
– Un locale archivio posto al piano interrato e raggiungibile tramite scala interna di circa 25 mq.
Riscaldamento e raffrescamento autonomi, corpi illuminanti, rete dati e impianto antifurto.
L’immobile gode di ampia disponibilità di parcheggi e di ottima visibilità grazie all’affaccio su due importanti arterie cittadine ad elevato transito sia pedonale che veicolare.
- m²400
- Classe EnergeticaNon specificato
- Riferimento immobileCA3953
11 mesi fa
Richiedi maggiori informazioni
Agenzia
Altri annunci nella zona
-
Impianto di riscaldamento autonomo Piano piano terra Vetrine: 1
Locale Commerciale In Vendita
Reggio nell'Emilia, Centro Storico
€571 €125.000
- m²48
- Classe EnergeticaEsclusiva
- IPED
11 ore fa -
Esclusiva
Appartamento In Vendita
Reggio nell'Emilia, Centro Storico
€280.000
- Camere da letto2
- Bagni1
- m²123
- Classe EnergeticaG
- IPE283.54 kwh/㎡
5 giorni faAgenzia
-
Appartamento In Vendita
Reggio nell'Emilia, Centro Storico
€530.000
- Camere da letto3
- Bagni2
- m²135
- Classe EnergeticaA2
- IPE0.00 kwh/㎡
7 giorni faAgenzia


