Reggio Nord – Capannone (Rif. AJ0246)
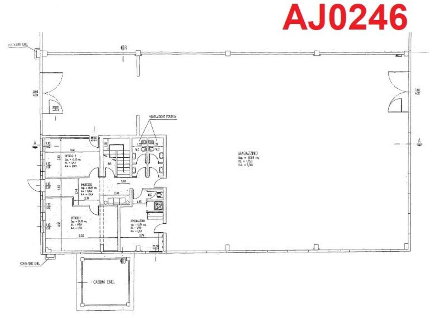
Capannone con una superficie totale di 1.137 mq, attualmente suddiviso in tre unità collegabili tra loro.
La parte principale consta di 445 mq circa di area produttiva con due portoni e prese 220 e 380.
Vi sono ulteriori 92 mq circa di area amministrativa con uffici, sala riunioni, doppi spogliatoi e servizi per la gestione dell’attività .
Gli uffici hanno pareti Rei e impianto di riscaldamento e refrigeramento pari al nuovo.
Suddivisi in due unità indipendenti, ognuna di 300 mq circa, vi sono due magazzini con ciascuno un portone, un piccolo ufficio, uno spogliatoio e un servizio.
Tutto l’immobile è in ottime condizioni, munito di rete antincendio e cupolini evacuatori.
Gli impianti sono autonomi e a norma, in dotazione vi è inoltre una cabina elettrica con disponibilità di 110 kW.
All’esterno vi è un’area cortiliva condominiale per la movimentazione merci e il parcheggio.
Grazie alle sue caratteristiche questo immobile rappresenta un’ottima opportunità per chi cerca una soluzione funzionale e ben organizzata per la propria attività .
Il capannone sarà disponibile da Agosto 2026.
- Logistica m²1.137
- Classe EnergeticaNon specificato
- Riferimento immobileAJ0246
4 settimane fa
Richiedi maggiori informazioni
Agenzia
Altri annunci nella zona
-
Esclusiva
Capannone In Affitto
Reggio nell'Emilia, Mancasale
€3.000
- Logistica m²665
- Classe EnergeticaF
- IPE63.26 kwh/㎥
4 giorni faAgenzia
-
Esclusiva
Studio/ufficio In Vendita
Reggio nell'Emilia, Mancasale
€560.000
- m²604
- Classe EnergeticaF
- IPE236.54 kwh/㎥
6 giorni faAgenzia
-
Studio/ufficio In Vendita
Reggio nell'Emilia, Mancasale
€90.000
- m²127
- Classe EnergeticaD
- IPE255.76 kwh/㎡
1 mese faAgenzia


