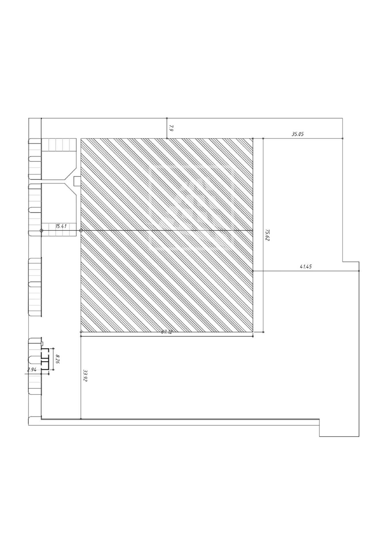
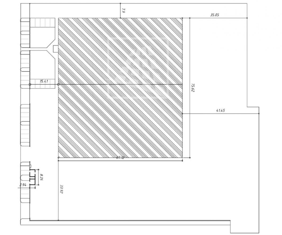
Bibbiano – Capannone Indipendente (Rif. VJ1001) Capannone indipendente di complessivi mq 5.182 su di una superficie fondiaria di mq 15.360, l’immobile è così composto:
– Area produttiva/magazzino mq 4.942, diviso in due unità immobiliari, con altezza massima prima porzione m 8,60, seconda porzione m 9,80, vi sono sei portoni carrai, quattro carri ponte da 5 ton e cabina elettrica di proprietà (mq 22,50)
– Uffici e servizi per mq 240 distribuiti su due piani con ingresso indipendente
– Area cortiliva mq 10.265 asfaltata e ghiaiata, completamente recintata con tre cancelli carrai.
La struttura è in buono stato di conservazione, anche se gli stabili necessitano di lavori di manutenzione straordinaria.
Inoltre vi è la possibilità di ulteriore superficie edificatoria per mq 3.000 circa.
Questo immobile rappresenta un’ottima opportunità per chi necessita di ampi spazi di lavoro e movimentazione merci per il proprio business.
- Logistica m²5.182
- Classe EnergeticaD
- IPE351.57 kwh/㎡
- Riferimento immobileVJ1001
3 mesi fa
Richiedi maggiori informazioni
Agenzia


